男衬衫版型设计
男衬衫衣身结构平衡:男衬衫结构为梯形—箱型结构,前身浮余量B*/40=2.2cm,采用下放量1cm,前片过肩分割处消掉0.7cm,其余0.5cm作为宽松量留在袖窿处。后衣身的浮余量为B*/40-0.4cm=1.8cm,采用后片过肩分割处消掉1cm,其余0.8cm作为宽松量留在袖窿处(图3-14)。

图3-14
一、标准男衬衫
1.款式特点 男衬衫一般指穿于西装内的单上衣,也可以作为外衣穿着,领子为立翻领结构,主要是为系领带设计的。衣身为四开身结构,左片门襟为明门襟设计、缉单明线,右片里襟内折,外缉单明线;前片左胸部位设一明贴袋;后片横断过肩,过肩为双层设计。背褶设计分为无背褶、有背褶两种形式,其中有背褶分为两侧各一个背褶或中间设一个背褶两种形式。一片式长袖,袖口设宝剑头袖开衩,开衩中部设一粒纽扣,袖克夫设一粒纽扣、缉双明线(图3-15)。

图3-15
2.规格设计(表3-1)
表3-1 标准男衬衫规格设计(170/88A)
单位:cm

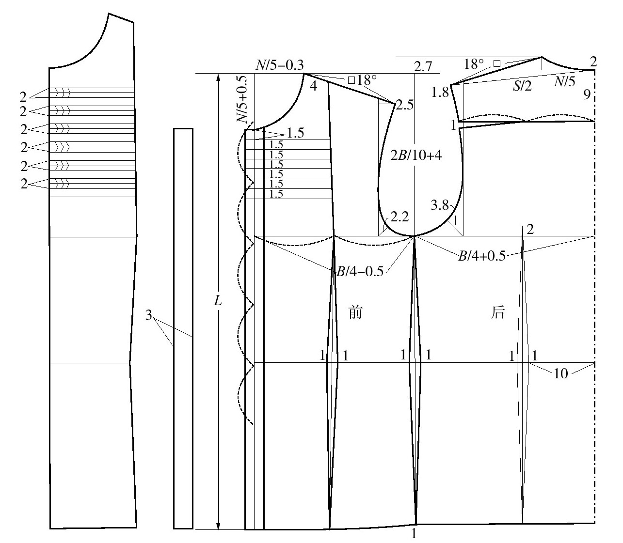
3.结构设计
(1)衣身结构设计(图3-16):
①前领宽=N/5-0.5cm、前领深=N/5+0.5cm,后领宽=N/5、后领深同原型。
②前衣长从领宽点向下量出衣长规格,后衣长比前衣长短1cm。
③后肩宽=S/2,前小肩宽=后小肩宽。
④背宽=S/2-2cm,胸宽=背宽-1cm。
⑤前胸围=B/4-1cm,后胸围=B/4+1cm。

图3-16
⑥搭门宽为1.75cm,外门襟贴边宽为3.5cm。
⑦过肩分割:前片分割平行小肩3~4cm,后背分割距领口深线6~10cm并平行于胸围线。
⑧左胸贴袋:袋口大=B/10-0.5cm、袋深=B/10+0.5cm、袋底小三角深1.5cm,袋侧距前宽线3cm、袋口高于胸围线3.5cm。
(2)过肩结构设计(图3-17):过肩是男衬衫设计的显著特点,采用借肩的形式,即前小肩分割3~4cm与后小肩纸样拼合,使肩线前移,后过肩横向分割而形成过肩,同时要做成双层,这样设计的好处在于可以有效地消除前、后生浮余量,增加肩部的耐磨强度。

图3-17

图3-18
(3)袖子结构设计(图3-18):男衬衫袖子为一片长袖,较宽松风格,因此,袖山高设计为B/10-1.5cm,这样设计袖肥略大,穿着舒适且活动量大。袖口偏后侧设计2~3个活褶,后袖口设计宝剑头长开衩。男衬衫袖子为平装袖,袖山吃势较小。前袖山斜线长取前AH-(0.3~0.5)cm,后袖山斜线取后AH。
(4)领子结构设计:如图3-19所示。
二、礼服男衬衫

图3-19
案例1:燕尾服衬衫
1.款式特点 礼服衬衫就是与礼服配套穿着的衬衫,男士的礼服分为燕尾服(也称为晚礼服)和塔士多礼服(晨礼服)。燕尾服衬衫和塔士多礼服衬衫的主要区别在于前衣身和袖克夫。燕尾服衬衫的前衣身胸前采用U型分割,属于仿生设计,门襟采用普通门襟。塔士多礼服衬衫的前衣身胸前以褶裥的形式设计胸挡,一般为方形,褶裥数在6~10个之间,门襟为明门襟设计,也可以将U型分割片设计成褶裥形式(图3-20)。

图3-20
2.规格设计(表3-2)
表3-2 燕尾服衬衫规格设计(170/88A)
单位:cm

3.结构设计(图3-21)

图3-21
4.结构设计说明
(1)燕尾服衬衫胸前的U型分割宽度一般为小肩的1/4,深度为第三粒纽扣到第四粒纽扣之间。另一种U型分割宽度为小肩的1/3,深度为腰节线上4cm。这两种U型分割都是垂直分割,还有一些变化款式,采用了弧线分割(图3-22)。
(2)前、后衣片下摆为弧线型,且后衣片比前衣片长4cm左右。这种设计有两层意义,一是燕尾服的仿生设计;二是系上腰带,弯腰时避免后下摆露出腰部而补足的量。
(3)前、后侧缝各收腰1.5cm,共收6cm,这种设计也是为了系上腰带腰部的余量较少,看起来比较干练。
(4)背褶6cm设计到后中,形成工字褶。
(5)领子为翼领设计,与之配套是系领结,领子后中的宽度为5cm,没有翻领。
(6)袖克夫设计成双层形式,更显得高档有品质。

图3-22
案例2:塔士多礼服衬衫
塔士多礼服衬衫,前胸的设计比燕尾服衬衫的设计更为复杂和讲究,如图3-23所示。一般有三种形式,一是U型分割加细褶,是折好褶裥后再缉一道明线,这种细褶称为塔克(图3-24);二是前衣片不分割,把褶裥折好后直接缉在衣片上,这种褶裥是方形(图3-25);三是前衣片门襟两侧分别加两到三层荷叶边,显得非常华贵(图3-26)。
另外,塔士多礼服衬衫还有一种变化款,那就是在前身垂直设计6~9条褶裥,前、后下摆的圆角稍微减小,后下摆与前下摆的长度差也减小1~2cm(图3-27)。

图3-23

图3-24

图3-25

图3-26

图3-27
三、休闲衬衫
休闲衬衫指在非正式场合穿着的、以轻快的细节设计为特征的外穿化衬衫的总称。由于休闲衬衫在穿着过程中无特定场合,因而比较随意自然,可根据时尚流行趋势及个性化要求进行设计。
案例1:短袖衬衫
1.款式特点 短袖衬衫指夏季外穿的衬衫,这类衬衫廓型为H型,袖子为短袖。领子设计可以为立翻领,也可以为单立领。下摆可以为直下摆(侧缝不收腰),也可以为小圆下摆(侧缝略收腰)。左胸设计一个明贴袋。门襟多为外贴边,领座和门襟的外贴边可以为配色布,更具有时尚休闲的意味(图3-28)。

图3-28
2.规格设计(表3-3)
表3-3 短袖衬衫规格设计(170/88A)
单位:cm

3.结构设计(图3-29)
案例2:变化款版型设计
休闲衬衫中还有一款立领衬衫,这款衬衫可以是长袖也可以是短袖,一般前、后下摆为小圆摆(图3-30)。

图3-29

图3-30
四、狩猎风格衬衫
1.款式特点 狩猎风格衬衫原自非洲草原狩猎人穿的衬衫,这种衬衫有长袖和短袖之分,其款式的主要特点是前胸两侧设计有带盖的贴袋,肩上设计有肩襻。颜色以军绿、土黄色为主,面料采用厚实的夹克面料,缝线设计为双明粗线,显得厚重、结实,有力量感,体现了猎人那种强悍的性格特点(图3-31)。

2.规格设计(表3-4)
图3-31
表3-4 短袖衬衫规格设计(170/88A)
单位:cm

3.结构设计(图3-32)

图3-32
五、时尚衬衫
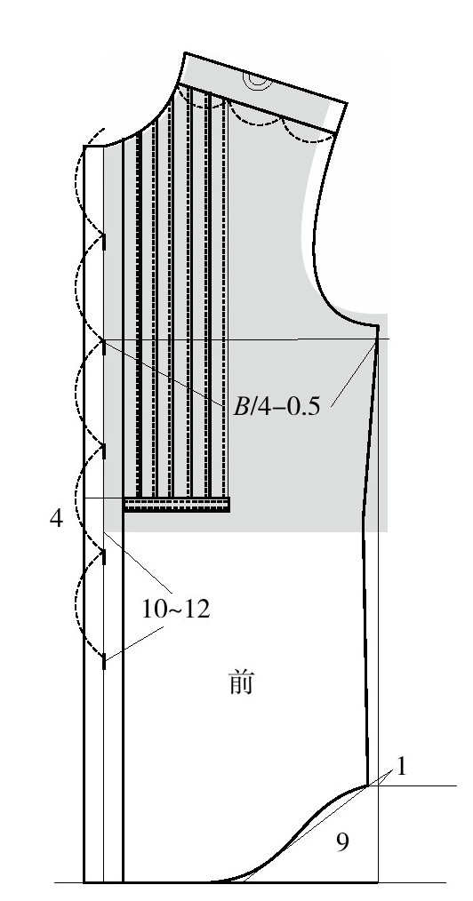
1.款式特点 时尚衬衫是当代青年人穿着的衬衫品类,这种衬衫不拘泥于标准男衬衫的格式,表现着时代的风尚,在结构上打破了常规,分割、配色、领子、门襟的变化都是设计元素,收腰修身、圆摆的设计更是多见。本款时尚衬衫的前身从肩上竖向分割、加褶,后片横向分割,后腰收省(图3-33)。

2.规格设计(表3-5)
图3-33
表3-5 时尚衬衫规格设计(170/88A)
单位:cm

3.结构设计(图3-34、图3-35)

图3-34

图3-35