【操作步骤】
启动SolidWorks 2012,单击“标准”工具栏中的“新建”按钮
,或执行“文件”→“新建”菜单命令,在弹出的“新建SolidWorks文件”对话框中单击“零件”按钮
,然后单击“确定”按钮,创建一个新的零件文件。
设置基准面。在左侧“FeatureManager设计树”中选择“前视基准面”,然后单击“标准视图”工具栏中的“正视于”按钮
,将该基准面作为绘制图形的基准面。单击“草图”工具栏中的“草图绘制”按钮
,进入草图绘制状态。
绘制草图。单击“草图”工具栏中的“直线”按钮
和“绘制圆角”按钮
,绘制如图11-37所示的草图并标注尺寸。

图11-37绘制草图
创建基准面。执行“插入”→“参考几何体”→“基准面”菜单命令,或单击“特征”工具栏中的“基准面”按钮
,弹出如图11-38所示的“基准面”属性管理器。选择“前视基准面”为参考面,输入偏移距离为500.00mm,单击“确定”按钮
,完成基准面1的创建。
设置基准面。在左侧“FeatureManager设计树”中选择“基准面1”,然后单击“标准视图”工具栏中的“正视于”按钮
,将该基准面作为绘制图形的基准面。单击“草图”工具栏中的“草图绘制”按钮
,进入草图绘制状态。
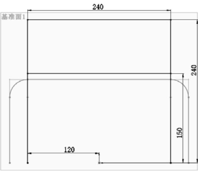
绘制草图1。单击“草图”工具栏中的“直线”按钮
,绘制如图11-39所示的草图并标注尺寸,最后退出草图。(https://www.daowen.com)

图11-38 “基准面”属性管理器

图11-39 绘制草图1
绘制草图2。首先单击“草图”工具栏中的“3D草图”按钮
,然后单击“草图”工具栏中的“直线”按钮
和“绘制圆角”按钮
,绘制如图11-40所示的草图并标注尺寸。

图11-40 绘制草图2
免责声明:以上内容源自网络,版权归原作者所有,如有侵犯您的原创版权请告知,我们将尽快删除相关内容。
