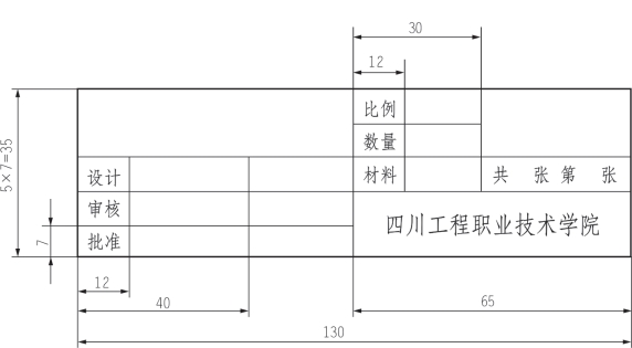
绘制自定义简易标题栏,如图4-22a所示的操作步骤:

图4-22a 简易标题栏
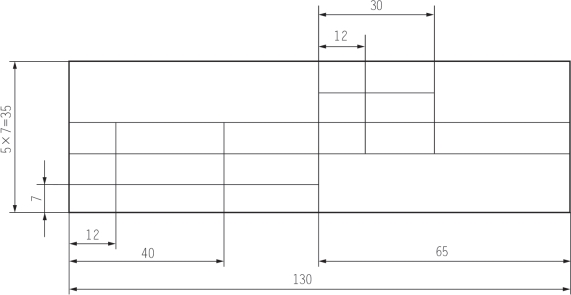
(1)新建一个图形文件,在绘图区中绘制,如图4-22b所示的标题栏线框。使用的命令:【直线】命令、【偏移】命令和【修剪】命令。标题栏的外框为粗实线,框内的内部线为细实线。

图4-22b 绘制标题栏线框
(2)设置标题栏固定文字。
标题栏中的标注文字主要分为两种:一种是固定的文字,另一种是可变的文字(随零件不同而改变的文字)。下面以填写单位名称(“四川工程职业技术学院”)为例介绍固定文字的设置方法。
①在【绘图】工具栏中单击【文本】按钮
,在标题栏中依次指定该框格的左上角和右下角点,弹出【文字格式】对话框,字体选择“工程字7”,输入单位名称“四川工程职业技术学院”,如图4-22c所示。

图4-22c 输入单位名称
②在【文字格式】对话框上单击【多行文字对正】按钮
,在下拉菜单中选择“正中MC”命令,如图4-22d所示。

图4-22d 设置文字对正
③单击【文字格式】对话框的【确定】按钮,完成固定文字的填写,如图4-22e所示。

图4-22e 完成固定文字的填写
④重复上述步骤选择“工程字5”字体,完成其他固定文字的填写,如图4-22f所示。(https://www.daowen.com)

图4-22f 其他固定文字的填写
(3)设置标题栏可变文字。
下面以设置“图号”为例,介绍设置标题栏可变文字的方法。
①单击菜单【绘图】/【块】/【定义属性】命令,弹出【属性定义】对话框,如图4-23a所示。

图4-23a 【属性定义】对话框
②在【属性】选项组的【标记】文本框中输入“(图号)”,在【提示】文本框中输入“输入图样号”。在【文字设置】选项组中,在【对正】的选项组中选择“正中”,从【文字样式】选项组中选择“工程字5”选项。在【插入点】选项组中,选择在【屏幕上指定】复选框,在属性定义对话框上单击确定按钮,如图4-23b所示。

图4-23b 设置图号
③在绘图区的标题栏中选择插入点,如图4-23c所示。

图4-23c 插入图号
④重复上述操作步骤,设置其他属性,如图4-23d所示。

图4-23d 设置其他属性
(4)把设置好的标题栏保存为绘图文件,以备创建图框时调用。
免责声明:以上内容源自网络,版权归原作者所有,如有侵犯您的原创版权请告知,我们将尽快删除相关内容。
