【操作步骤】
设置基准面。在左侧“FeatureManager设计树”中选择“右视基准面”,然后单击“标准视图”工具栏中的“正视于”按钮
,将该基准面作为绘制图形的基准面。单击“草图”工具栏中的“草图绘制”按钮
,进入草图绘制状态。
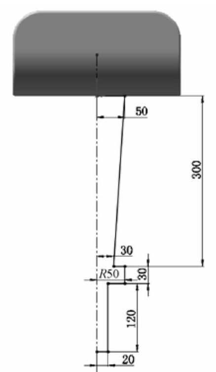
绘制草图。单击“草图”工具栏中的“中心线”按钮
和“直线”按钮
,绘制如图11-11所示的草图并标注尺寸。
薄壁旋转。执行“插入”→“凸台/基体”→“旋转”菜单命令,或者单击“曲面”工具栏中的“旋转”按钮
,弹出如图11-12所示的“SolidWorks”对话框,单击“否”按钮,系统弹出“旋转”属性管理器;输入薄壁厚度为5.00mm,其他采用默认设置,如图11-13所示,单击“确定”按钮
,生成旋转薄壁,如图11-14所示。

图11-11 绘制草图

图11-12 “SolidWorks”对话框

图11-13 “旋转”属性管理器

图11-14 旋转薄壁
创建基准面。执行“插入”→“参考几何体”→“基准面”菜单命令,或者单击“特征”工具栏中的“基准面”按钮
,弹出如图11-15所示的“基准面”属性管理器,在视图中选择“上视基准面”,输入偏移距离为390.00mm,勾选“反转”复选框;单击“确定”按钮
,创建基准面1,如图11-16所示。(https://www.daowen.com)

图11-15 “基准面”属性管理器

图11-16 创建基准面1
圆角处理。单击“特征”工具栏中的“圆角”按钮
,或执行“插入”→“特征”→“圆角”菜单命令,弹出“圆角”属性管理器,在视图中选择如图11-17所示的两条边线,输入圆角半径为10.00mm,然后单击“确定”按钮
。重复“圆角”命令,输入圆角半径为3.00mm,选择如图11-18所示的两条边线,圆角处理如图11-19所示。

图11-17 “圆角”属性管理器

图11-18 选择圆角边线

图11-19 圆角处理
免责声明:以上内容源自网络,版权归原作者所有,如有侵犯您的原创版权请告知,我们将尽快删除相关内容。
