11.2.2 起重机械
2025年09月26日
11.2.2 起重机械
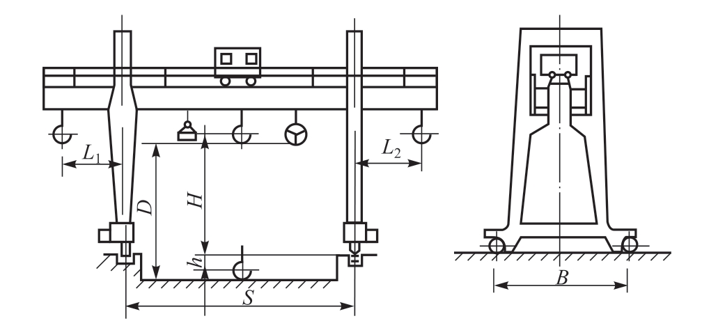
起重机械类型及部分起重机图见图11-2至图11-6。

图11-2 起重机械类型

图11-3 轻型双梁起重机

图11-4 箱型双梁门式起重机

图11-5 汽车起重机

图11-6 集装箱装卸桥
起重机械是指用于垂直升降或垂直升降并水平移动重物的机电设备。起重作业是将机械设备或其他物件从一个地方运送到另一个地方的一种作业过程。多数起重机械在吊具取料之后即开始做垂直或垂直兼水平的工作行程,在到达目的地后卸载,再空行到取料地点即完成一个工作循环,然后再进行第二次调运。一般来说,起重机械工作时,取料、运移和卸载是依次进行的,各相应机构的工作是间歇性的。起重机械主要用于搬运成件物品,配备抓斗后可搬运煤炭、矿石、粮食之类的散状物料,配备盛桶后可吊运钢水等液态物料,有些起重机械可用来载人。