11.3.2 堆垛起重机
堆垛起重机是立体仓库中最重要的起重运输设备,是代表立体仓库特征的标志。其主要用途是在仓库的通道内来回穿梭运行,将位于巷道的货物存入货格,或者将货格中的货物取出,运送到巷口,并移交给其他输送设备,它要求存储单元(SKU)都为尺寸、规格一样的托盘商品或其他货箱、货盘等集装单元器具,标准化的SKU整进整出。与巷道堆垛机配合的还有配套搬运机械设备,实现配套使用,才能提高整个仓库的工作效率和经济效益。
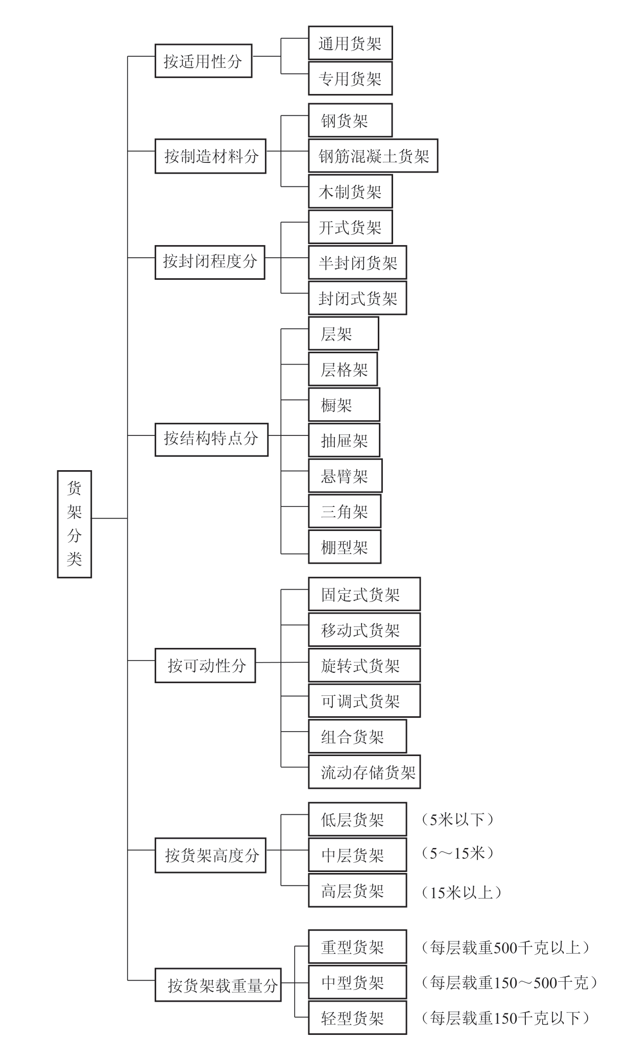
1.堆垛起重机的类型
堆垛起重机的分类见图11-46。

图11-33 货架技术装备分类

图11-34 轻型货架

图11-35 中型挂板货架

图11-36 中型挂梁式货架

图11-37 重型货架

图11-38 悬臂式货架

图11-39 抽屉式货架

图11-40 移动式货架

图11-41 托盘货架

图11-42 重力式货架

图11-43 阁楼式货架

图11-44 驶入式货架a

图11-45 驶入式货架b

图11-46 堆垛起重机的分类
2.堆垛起重机的特点
(1)由于在轨道上运行,上、下都受轨道的严格制约,因而,所需通道宽度比其他各类机械都小,可大幅度提高仓库面积的利用率,仅货架部分面积利用率就可提高1/4。
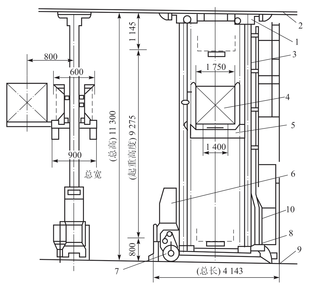
(2)由于轨道的限定,稳定性好,比叉车的装卸高度大大提高。巷道起重机一般高度在6米以上,最高可达40米,提高了仓库的空间利用率。双立柱巷道堆垛起重机见图11-47,单立柱堆垛起重机见图11-48,双立柱堆垛起重机见图11-49。
(3)运行速度快,国外巷道机最高速度为150米/分,国产为40~50米/分。
(4)可配合计算机及伸缩货叉实现全自动操作。
(5)能适应特殊环境下的工作条件。

图11-47 双立柱巷道堆垛起重机
1—上梁;2—天轨;3—立柱;4—载货台;5—存取货机构;6—运行机构;
7—车轮;8—下梁;9—地轨;10—起升机构

图11-48 单立柱堆垛起重机

图11-49 双立柱堆垛起重机