2.3.3 符号与连接线
1.符号
电气图的符号原则上应按照JB/T 2739标准绘制(参见2.4节),但是,标准不限制或阻碍技术进步,因此,JB/T 2740—2008已明确规定,电气设计图可采用IEC或EN(欧盟)、DIN(德国)等国际和地区性的先进标准。
(1)符号选择
选择图形符号时,应尽可能采用优选符号、应尽量采用最简单的形式,特别是在采用单线表示的简图上,应优先使用一般图形符号或简化图形符号;但是,电路图应使用完整的图形符号;此外,同一份图样中的符号应使用同一形式。
(2)符号状态
电路图上的元器件状态应为通电前的状态,逻辑元件应为“置零”状态,操作开关应为机床工作前的状态;在机床起始位置即受外力作用的元件,应绘制成外力作用下的状态。
(3)符号方向
大多数符号的取向是任意的,但框图、逻辑元件、模拟单元的符号的方向应向上或向左(从底部或右侧阅读)。对于开关器件,作为推荐,对于垂直布置的电路,元器件的触点一般应画成“左开右闭”的形式;对于水平布置的电路,元器件的触点一般应画成“下开上闭”的形式。
需要注意的是,标准同时规定,为了避免导线的折弯或交叉,在不会引起误解的情况下,也可以把符号旋转或画成镜像状态。因此,即使在先进国家,为了使图形更清晰和美观,在不会引起误解时,电路图上的触点等元器件符号,其方向有时也不一定完全按“左开右闭”、“下开上闭”绘制。
(4)符号大小
绝大多数情况下,符号的形式决定了符号的含义,因此,符号的大小应以不影响符号的含义为原则,其最小尺寸应符合图线宽度、图线间距、标注等规则。当一个符号被另一符号限定时,限定的符号可适当缩小;需突出表示的符号,或需要补充信息、增加输入、输出数量的符号允许适当放大。
(5)符号引线
如图2.3-5a所示,对于变压器绕组等引线不影响含义的符号,其引线可取不同的方向;但是,如图2.3-5b所示,对于电阻、线圈等引线位置改变可能影响符号含义的情况,则不能改变引线的位置。
2.连接线
(1)基本要求
连接线应采用实线,计划扩展的内容采用虚线。连接线不应在与另一连接线的交叉处改变方向,也不应穿过其他连接线的连接点。连接线的相互连接处,一般应使用实心圆点表示。
为了便于图纸阅读,多条平行连接线应按照功能分组;不按功能分组时,可任意分组,每组的连接线一般不多于3条;平行线组的间距应大于连接线间距。连接线的识别标记一般应位于上方(水平布置)或左侧(垂直布置),也可以用断开连接线的方式进行标注。

图2.3-5 符号的引线方向
a)允许改变 b)不能改变
(2)连接线中断
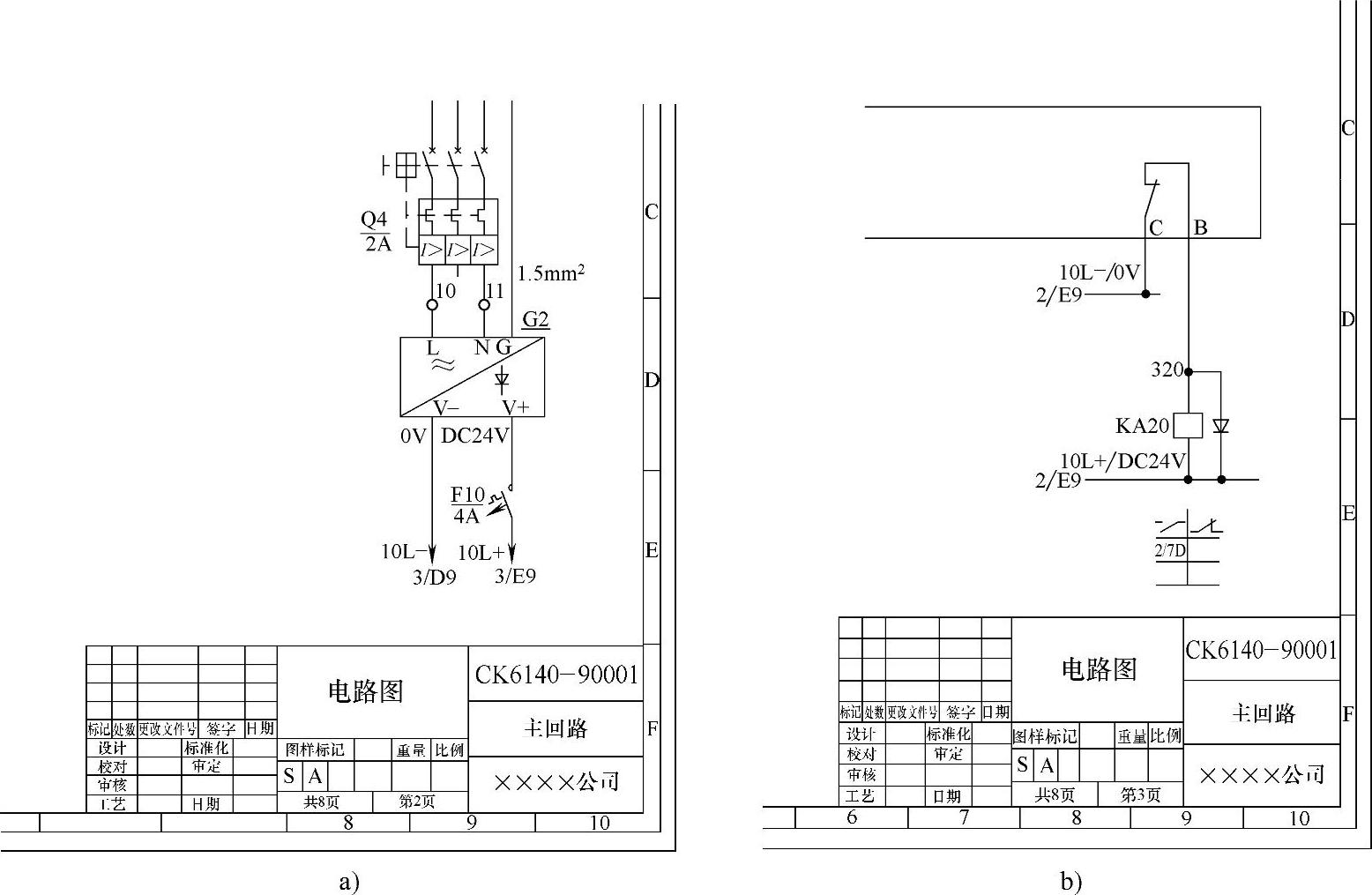
需要连接到下一张图的连接线,应该中断;当一张图中的连接线较长或需要穿越图形稠密区时,也允许中断。连接线的中断处,应标明页次和分区编号。例如,在图2.3-6中,第2页的直流电源输出0V/DC24V连接线10L-/10L+,需要连接到第3页的KA20控制回路,连接线需要中断,因此,其中断处需要标明去向,即图纸页次和分区编号3/D9、3/E9;而第3页的0V/DC24V连接线10L-/10L+中断处,需要标明连接线来源的第2页分区编号2/E9。

图2.3-6 连接线的中断
(3)简化画法
在电气连接图等图样上,为了避免出现太多的连接线,可采用图2.3-7所示的单线简化画法,来表示一组连接线。利用单线表示一组线时,一般需要在连接线的末端注明连接线标记;利用单线表示多根连接线时,必要时可按图2.3-7c标注线数(图中为3线和5线的表示法)。

图2.3-7 连接线的简化画法
a)平行线组 b)导线汇成组 c)线数的标注
3.连接线标记
连接线应采用字母、数字或符号作为识别标记,标记一般应位于上方(水平布置)或左侧(垂直布置),也可用断开连接线的方式进行标注。IEC、DIN EN等标准规定了表2.3-3所示的特殊连接线标记,但JB/T 2740中只采用了其中的部分,标准有待完善。
表2.3-3 IEC、DIN EN规定的特殊连接线标记

此外,DIN、IEC、ANSI、BS标准中,还规定了图2.3-8所示的连接线画法,设计时可根据需要采用或阅读进口图样时参考。

图2.3-8 连接线的其他画法
a)PE线 b)N或M线 c)PEN线