1.3.1 单柱独立基础钢筋计算实例

1.3.1 单柱独立基础钢筋计算实例

1)矩形独立基础底板底部钢筋

(1)平法施工图

DJJ1平法施工图如图1.21所示。这是一个普通阶形独立基础,两阶高度为500/300mm,其剖面示意图如图1.22所示。

图1.21 DJJ1平法施工图

图1.22 剖面示意图

(2)钢筋计算

①X向钢筋

长度:X向钢筋长度计算见表1.9。

表1.9 DJJ1X向钢筋长度计算

根数:X向钢筋根数计算见表1.10。

表1.10 DJJ1X向钢筋根数计算过程

②Y向钢筋

长度:Y向钢筋长度计算见表1.11。

表1.11 DJJ1Y向钢筋长度计算

根数:Y向钢筋根数计算见表1.12。

表1.12 DJJ1Y向钢筋根数计算过程

2)长度缩减10%时构造要求

(1)对称配筋

①平法施工图

DJ2平法施工图见图1.23。

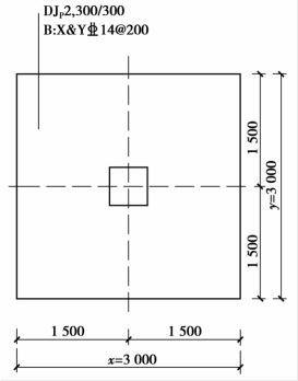
图1.23 DJP2平法施工图

图1.24 DJP2钢筋示意图

②钢筋计算

DJP2为正方形,X向钢筋与Y向钢筋完全相同,本例中以X向钢筋为例进行计算,计算过程见表1.13,钢筋示意图见图1.24。

表1.13 DJP2钢筋计算过程

(2)非对称配筋

①平法施工图

DJP3平法施工图见图1.25。

图1.25 DJP3平法施工图

图1.26 DJP3钢筋示意图

②钢筋计算

本例Y向钢筋与上例DJP2完全相同。本例讲解X向钢筋的计算见表1.14,钢筋示意图见图1.26。

表1.14 DJP3钢筋计算过程

续表