4.1 板构件钢筋平法识图

4.1 板构件钢筋平法识图

板构件平法识图知识体系,见表4.1。

表4.1 板构件平法识图知识体系

续表

本节主要讲述有梁楼盖板钢筋平法识图。对板钢筋标注分为板块集中标注和板支座原位标注两种。

1)板块集中标注

16G101—1图集的集中标注以“板块”为单位。对于普通楼面,两向均以一跨为一块板。

(1)板块编号(表4.2)

表4.2 板块编号

(2)板厚注写

①板厚注写为h=×××(为垂直于板面的厚度),例:h=120。

②当悬挑板的端部改变截面厚度时,注写为h=×××/×××(斜线前为板根的厚度,斜线后为板端的厚度),例:h=120/80。

(3)纵筋

纵筋按板块的下部纵筋和上部贯通纵筋分别注写(当板块上部不设贯通纵筋时则不注)。16G101图集规定:以B代表下部,T代表上部,B&T代表下部与上部;以X代表X向纵筋,Y代表Y向纵筋,X&Y代表两向纵筋配置相同。

①双向板配筋(单层布筋)

表示:编号为LBI的楼面板,厚度为100mm;板下部布置X向纵筋为12@120,Y向纵筋为10@110;板上部未配置贯通纵筋——板的周边需要布置上部非贯通纵筋。

②双层板配筋(双向布筋)

表示:编号为LB2的楼面板,厚度为120mm;板下部布置X向纵筋为12@120,Y向纵筋为10@110;板上部配置贯通纵筋X向和Y向都是12@150。

③双层板配筋(双向布筋)

表示:编号为WB1的屋面板,厚度为120mm;板下部配置纵筋X向和Y向都是12@150;板上部配置纵筋无论是X向还是Y向都是12@150。

④单向板配筋(单层布筋)

表示:编号为LB3的楼面板,厚度为100mm;板下部布置Y向纵筋10@150;板下部X向布置的分布筋不必进行集中标注,而在施工图统一注明。

【例4.1】 双层双向板的标注(图4.1中LB1)

图4.1 板平法标注示例(1)

表示:编号为LB1的楼面板,厚度为100mm;板下部配置纵筋X向和Y向都是8@150;板上部配置贯通纵筋X向和Y向都是8@150。

【例4.2】 单层双向板的标注(图4.1中LB2)

上述标注表示:编号为LB2的楼面板,厚度为120mm;板下部布置X向纵筋为10@150,Y向纵筋为8@120。

【例4.3】 “走廊板”的标注(图4.2中LB3)

图4.2 板平法标注示例(2)

表示:编号为LB3的楼面板,厚度为100mm;板下部配置纵筋X向和y向都是8@150;板上部配置的X向贯通纵筋为8@150。

注意:上部Y向没有标注贯通纵筋,但是并非没有配置钢筋,Y向的上部钢筋有原位标注的横跨两道梁的上部非贯通纵筋10@100,因此在本板块的上部有此钢筋贯通。根据规范要求,板中在有受力钢筋处,应在受力钢筋内侧的垂直方向放有分布钢筋,因此在本板块上部X向还有分布筋8@250。

(4)板面标高高差

板面标高高差系指相对于结构层楼面标高的高差,应将其注写在括号内,且有高差则注,无高差则不注。例如,(-0.100)表示板块比本层楼面标高低0.100m。

2)板支座原位标注

板支座原位标注的内容为板支座上部非贯通纵筋(即上部非贯通纵筋)和悬挑板上部受力钢筋。

(1)板支座原位标注的基本方式

①采用垂直于板支座(梁或墙)的一段适宜长度的中粗实线来代表上部非贯通纵筋,在上部非贯通纵筋上注写钢筋编号、配筋值、横向连续布置的跨数(注写在括号内,且当为一跨时可不注),以及是否横向布置到梁的悬挑端。

②在上部非贯通纵筋的下方注写自支座中线向跨内的延伸长度。

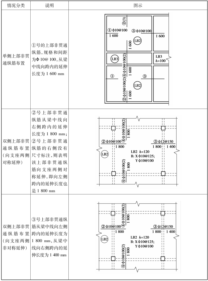
(2)板支座原位标注的各种情况(见表4.3)

表4.3 板支座原位标注识图

续表

(3)板支座原位标注中其他问题

与板支座上部非贯通纵筋垂直且绑扎在一起的构造钢筋或分布钢筋,应由设计者在图中注明。例如,在结构施工图的总说明里规定板的分布钢筋为8,间距为250mm;或者在楼层平面图上规定板分布钢筋的规格和间距。

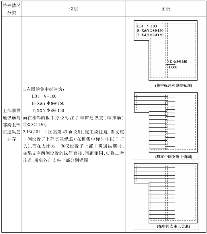
3)上部非贯通纵筋特殊情况的处理(见表4.4)

表4.4 上部非贯通纵筋特殊情况识图

续表