6.3.1 基础梁钢筋计算实例

6.3.1 基础梁钢筋计算实例

1)普通基础梁JL01

(1)JL01平法施工图(图6.24)

图6.24 JL01平法施工图

(2)钢筋计算(本例中不计算加腋筋)

①钢筋计算参数,见表6.46。

表6.46 JL01钢筋计算参数

②钢筋计算过程,见表6.47。

表6.47 JL01钢筋计算过程

续表

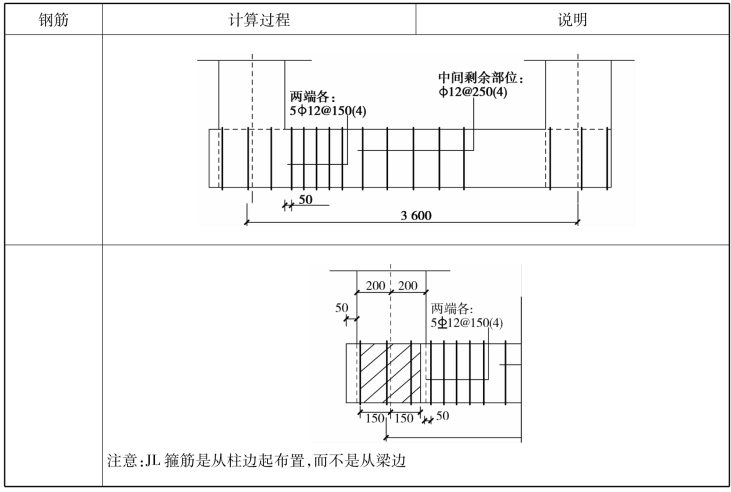
2)基础梁JL02(底部非贯通筋、架立筋、侧部构造筋)

(1)JL02平法施工图(图6.25)

图6.25 JL02平法施工图

(2)钢筋计算(本例中不计算加腋筋)

①钢筋计算参数,见表6.48。

表6.48 JL02钢筋计算参数

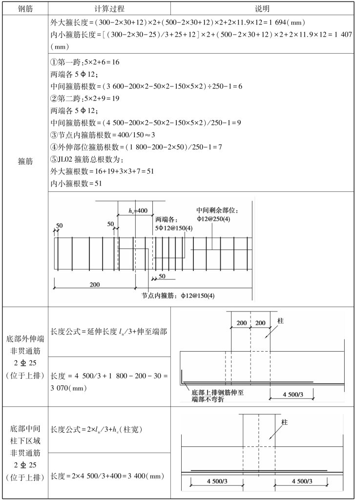
②钢筋计算过程,见表6.49。

表6.49 JL02钢筋计算过程

续表

3)基础梁JL03(双排钢筋、有外伸)

(1)JL03平法施工图(图6.26)。

图6.26 JL03平法施工图

(2)钢筋计算(本例中不计算加腋筋)

①钢筋计算参数,见表6.50。

表6.50 JL03钢筋计算参数

②钢筋计算过程,见表6.51。

表6.51 JL03钢筋计算过程

续表

续表

4)基础梁JL04(有高差)

(1)JL04平法施工图(图6.27)

图6.27 JL04平法施工图

(2)钢筋计算(本例中不计算加腋筋)

①钢筋计算参数,见表6.52。

表6.52 JL04钢筋计算参数

②钢筋计算过程,见表6.53。

表6.53 JL04钢筋计算过程

续表

续表

5)基础梁JL05(侧腋筋)

(1)JL05平法施工图(图6.28)。

图6.28 JL05平法施工图

(2)钢筋计算(本例以①轴线加腋筋为例,②、③轴位置的加腋筋同理)

①钢筋计算参数,见表6.54。

表6.54 JL05钢筋计算参数

②钢筋计算过程,见表6.55。

表6.55 JL05钢筋计算过程