8.1.2 剪力墙构件平法标识

8.1.2 剪力墙构件平法标识

1)剪力墙构件的平法表达方式

剪力墙构件的平法表达方式有列表注写和截面注写两种方式。

(1)剪力墙构件列表注写方式

列表注写方式,是指对应于剪力墙平面布置图上的编号,分别在剪力墙柱表、剪力墙身表和剪力墙梁表中,用绘制截面配筋图并注写几何尺寸及配筋具体数值的方式,来表达剪力墙平法施工图。

剪力墙列表注写方式识图,需将剪力墙平面布置图对照墙柱、墙身、墙梁表阅读。剪力墙列表注写方式平法施工图的组成见图8.1,注写示例见图8.2。

图8.1 剪力墙列表注写方式

(2)剪力墙截面注写方式

剪力墙截面注写方式,是指在分标准层绘制的剪力墙平面布置图上,直接在墙身、墙柱、墙梁上注写截面尺寸和配筋信息的方式来表达剪力墙平法施工图,见图8.3。

图8.3 剪力墙截面注写方式

2)剪力墙平法识图要点

剪力墙平法表达方式中两种方式表达的数据项意义是相同的,下面讲解这些数据项在阅读和识图时的要点。

(1)结构层高及楼面标高识图

一、二级抗震设计的剪力墙结构,有一个“底部加强部位”,注写在“结构层高与楼面标高”表中,见图8.4。

(2)墙柱识图

①墙柱的编号,见表8.2。

表8.2 墙柱的编号

图8.4 加强部位示意图

②墙柱的分类,从两个角度来分,见表8.3。

表8.3 墙柱分类

续表

③剪力墙柱表示例,见表8.4。

表8.4 剪力墙柱表

剪力墙柱表包括:柱截面形状及配筋图、墙柱编号、各段墙柱的起止标高、纵筋总配筋值、箍筋信息。平法施工图标注的lc(实际工程中注明具体数值)为约束边缘构件沿墙肢的长度。

(3)墙身识图

墙身编号,由墙身代号、序号以及墙身所配置的水平与竖向分布钢筋的排数组成,其中,钢筋排数注写在括号内。剪力墙平法施工中图表达形式为Q××(×排),在剪力墙身表中表达的内容见表8.5。

表8.5 墙身表

矩形拉筋、梅花双向拉筋示意图,见图8.5。

图8.5 矩形拉筋、梅花双向拉筋示意图

(4)墙梁识图

墙梁编号由墙梁类型代号和序号组成,见表8.6。

表8.6 墙梁编号

①跨高比不于5的连梁按框架梁设计时(代号为LLK),平面注写规则同框架梁。

②当某些墙身设置暗梁或边框梁时,在剪力墙平法施工图中绘制暗梁或边框梁的平面布置图并编号,明确其具体位置(图8.6)。

图8.6 剪力墙平法施工示意图

在剪力墙梁表中表达的内容见表8.7。

表8.7 剪力墙梁表中表达的内容

③当梁顶相对结构标高有高差时,剪力墙梁表标注高差值,见表8.8。

表8.8 剪力墙梁表标注高差值

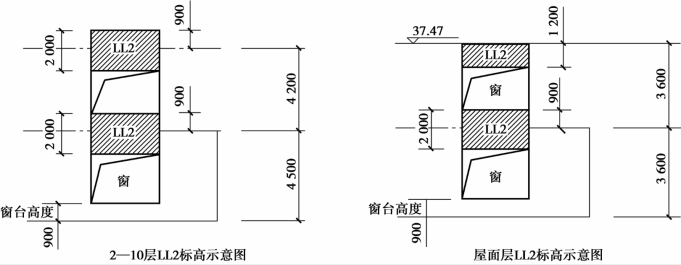
LL2标高与楼层标高的关系示意图,见图8.7。

图8.7 LL2标高与楼层标高的关系示意图

2—10层,LL2高出本层结构标高的高差为0.9m,正好是窗台的高度,LL2正好位于上下两层楼的窗与窗之间。梁表中屋面层梁顶相对标高高差为0,表示连梁顶标高与结构标高相同。

说明:梁顶相对标高高差是指墙梁相对于结构层楼面标高的高差值。高于此值者为正,低于此值者为负,无高差时不注。

④墙梁侧面纵筋的配置。当墙身水平筋满足墙梁侧面纵向构造钢筋的要求时,表中不注明,以墙身水平筋代替;不能满足时,在表中补充具体数值。

连梁LLK侧面纵筋以大写字母“N”打头注写。