4.3 板构件钢筋计算实例

4.3 板构件钢筋计算实例

本节运用板构件构造要求,举例计算板构件钢筋。

1)板平法施工图

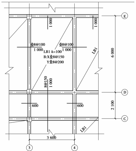
板构件平面图,如图4.4所示。

图4.4 板构件平面图

2)板构件钢筋工程量计算

(1)计算条件(表4.17)。

表4.17 计算条件

(2)钢筋计算过程

①板钢筋计算参数,见表4.18。

表4.18 板钢筋计算参数

②板钢筋计算过程:板平面配筋图③轴~④轴交Ⓓ轴~Ⓔ轴LB1钢筋工程量计算过程见表4.19。

表4.19 板钢筋计算过程

续表