2.1.2 货币的时间价值的计算

2.1.2 货币的时间价值的计算

1.单利

单利是指只对本金计算利息,而不将以前计息期产生的利息累加到本金中计算利息的一种计息方法,即利息不再计息。

在单利计算中,设定以下符号:P为本金(现值);i为利率(小写字母表示相对数);I为利息(大写字母表示绝对数);F为本利和(终值);n为时间。

(1)单利利息的计算

在单利方式下本金能带来利息,利息必须在提出以后再以本金形式投入才能生利,否则不能生利。单利利息的计算公式为

【例2-1】 某企业有一张带息票据,面额40 000元,票面利率6%,单利计息,则到期利息为:40 000×6%=2 400(元)。

(2)单利终值的计算

单利终值是本金与未来利息之和。计算公式为

【例2-2】 某企业购买了面值1 000元的政府发行的国库券,票面利率为10%,3年到期,利息按单利计算。问1年后、2年后、3年后的终值是多少?

解 1年后:1 000×(1+10%)=1 100(元)

  2年后:1 000×(1+10%×2)=1 200(元)

  3年后:1 000×(1+10%×3)=1 300(元)

(3)单利现值的计算

单利现值的计算公式为

【例2-3】 假设银行存款年利率为6%,单利计息,5年后要从银行取出50 000元,现在需要存入多少钱?

解 50 000/(1+6%×5)=38 462(元)

2.复利

复利也是一种计算利息的方法。按照这种方法,每经过一个计息期,要将所生利息加入本金再计利息,逐期滚算,俗称“利滚利”。这里所说的计息期,是指相邻两次计息的时间间隔,如年、月、日等。除非特别指明,否则计息期为1年。

(1)复利终值

复利终值是指现在特定资金按复利计算的在将来一定时间的价值,或者说是现在的一定本金在将来一定时间按复利计算的本金与利息之和。

【例2-4】 某人将10 000元投资于一项事业,年报酬率为6%,经过1年时间的期末金额为:10 000×(1+6%)=10 600(元)。

若此人并不提走现金,将10 600元继续投资于该事业,则第二年的本利和为:10 000×(1+6%)2=10 000×1.123 6=11 236(元)。

在复利计算中,设定以下符号:P为本金(现值);i为利率(小写字母表示相对数);I为利息(大写字母表示绝对数);F为本利和(终值);n为时间。

则第n年的期末金额可用如下复利终值公式计算:

上式是计算复利终值的一般公式,其中的(1+i)n 被称为复利终值系数或1元的复利终值,用符号(F/P,i,n)来表示,该系数也可以直接从附表1“复利终值系数表”中查出。根据这个系数可以把现值换算成终值。

(2)复利现值

复利现值是复利终值的对称概念,指在未来一定时间的特定资金按复利计算的现在价值,或者说是为取得将来一定的本利和,现在所需要的本金。

复利现值的计算是指已知F、i、n 时,求P。因为F=P×(1+i)n,所以复利现值公式为

上式中的(1+i)-n是把终值折算为现值的系数,称为复利现值系数,或称作1元的复利现值,用符号(P/F,i,n)来表示,该系数也可以直接从附表2“复利现值系数表”中查出。根据这个系数可以把终值换算成现值。

【例2-5】 某企业计划存入银行一笔资金,3年后取出的本利和要达到500 000元,以便进行技术改造,按9%的折现率计算,现在应该存入多少钱?

解 根据复利现值系数

(P/F,9%,3)=0.772

P=500 000×0.772=386 000(元)

3.年金

年金是指等额定期的系列收支。例如,分期付款赊购、分期偿还货款、分期向保险公司交纳保费、按直接法提取折旧、按期收付利息等都属于年金形式。按照收付的次数和支付时间的不同,可将年金分成四类,即普通年金(后付年金)、预付年金、递延年金和永续年金。

(1)普通年金

普通年金是指每期期末等额收付的资金,比如个人住房贷款中的等额还款或等额的租金支付等。

①普通年金终值

普通年金终值是指系列收付款项在最后时点的本利总和,它是每次支付款项的复利终值之和。

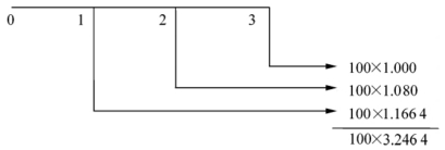
【例2-6】 某企业连续3年每年年末存入银行100元,银行年利率为8%,到第三年年末,年金终值应为多少?

解 年金时间轴如图2-1所示。

图2-1 普通年金终值

第一期末100元的复利终值=100×(1+8%)2

第二期末100元的复利终值=100×(1+8%)1

第三期末100元的复利终值=100×(1+8%)0

所以年金终值为

将式①两边乘以(1+8%)得

将式②-式①得

将上述年金终值计算公式推广得

式中,[(1+i)n-1]/i是普通年金为1元、利率为i、经过n 期的年金终值,称为年金终值系数,记作(F/A,i,n)。该系数也可以直接从附表3“年金终值系数表”中查出。相应地,普通年金终值的计算公式可写成F=A(F/A,i,n)。

【例2-7】 某人连续5年每年年末存入银行10 000元,年利率为5%。计算第五年年末的本利和。

解 F=A(F/A,5%,5)=10 000×5.525 6=55 256(元)

上面的计算表明,每年年末存10 000元,连续存5年,到第五年年末可得55 256元。

②普通年金现值

普通年金现值是指为在每期期末取得相等金额的款项,现在需要投入的金额。

【例2-8】 某人出国3年,请你代付房租,每年租金10 000元,设银行存款年利率为10%,那么他应当现在给你在银行存入多少钱?

这个问题可以表述为:请计算i=10%,n=3,A=10 000元的年终付款的现在等效值是多少?

解 年金时间轴见图2-2。

图2-2 普通年金现值

第一期末10 000元的复利现值=10 000×(1+10%)-1

第二期末10 000元的复利现值=10 000×(1+10%)-2

第三期末10 000元的复利现值=10 000×(1+10%)-3

所以年金现值为

将式①两边乘以(1+10%)得

将式②-式①得

将上述年金现值计算公式推广得

式中,[1-(1+i)-n]/i是普通年金为1元、利率为i、经过n 期的年金现值,称为年金现值系数,记作(P/A,i,n)。该系数也可以直接从附表4“年金现值系数表”中查出。相应地,普通年金现值的计算公式可写成P=A(P/A,i,n)。

【例2-9】 某人希望每年年末取得10 000元,连续取5年,银行年利率为5%。那么第一年年初他应一次性存入多少元?

解 P=A(P/A,i,n)=10 000×4.329 5=43 295(元)

即为了每年年末取得10 000元,那么第一年年初应一次性存入43 295元。

(2)预付年金

预付年金是指每期收入或支出相等金额的款项是发生在每期的期初,而不是期末,也称为先付年金或即付年金。

预付年金与普通年金的区别在于收付款的时点不同,普通年金在每期的期末收付款项,而预付年金在每期的期初收付款项,收付时间如图2-3和图2-4所示。

图2-3 普通年金收付款项时间图

图2-4 预付年金收付款项时间图

从图2-3和图2-4可见,n 期的预付年金与n 期的普通年金相比,其收付款次数是一样的,只是收付款时点不一样。如果计算年金终值,预付年金要比普通年金多计1年的利息;如果计算年金现值,则预付年金要比普通年金少折现1年。因此,在普通年金的现值与终值的基础上乘以(1+i)便可计算出预付年金的现值与终值。

①预付年金终值

式(2-8)右边除A 以外的部分可简化为[(1+i)n+1-1]/i-1,称为预付年金终值系数,记作[(F/A,i,n+1)-1]。可利用年金终值系数表查得n+1期的终值,然后减去1,就可得到预付年金终值系数。

【例2-10】 将例2-7中收付款的时间改为每年年初,其余条件不变,计算第五年年末的本利和。

解 10 000×[(F/A,5%,5+1)-1]=10 000×(6.801 9-1)=58 019(元)

上式结果与例2-7的普通年金终值相比,相差(58 019-55 256)=2 763元,该差额实际上就是预付年金比普通年金多计1年利息而造成的,即55 256×5%=2 762.80元,约2 763元。

②预付年金现值

式(2-9)右边除A 以外的部分可简化为[1-(1+i)-(n-1)]/i+1,称为预付年金现值系数,记作[(P/A,i,n-1)+1]。可利用年金现值系数表查得n-1期的现值,然后加上1,就可得到预付年金现值系数。

【例2-11】 将例2-9中收付款的时间改为每年年初,其余条件不变,计算第一年年初应一次性存入多少钱。

解 10 000×[(P/A,5%,5-1)+1]=10 000×(3.546 0+1)=45 460(元)

上式结果与例2-9的普通年金现值相比,相差45 460-43 295=2 165元,该差额实际上是由于预付年金现值比普通年金现值少折现1年造成的,即43 295×5%=2 164.75元,约2 165元。

(3)递延年金

递延年金是指第一次收支发生在第二期或第二期以后的年金。递延年金的支付形式见图2-5。从图中可以看出,前三期没有发生支付,一般称为递延期,用m 表示递延期数,本例中m=3。第一次支付在第四期期末,连续支付4次,即n=4。

图2-5 递延年金的支付形式

①递延年金终值

递延年金终值的计算方法和普通年金终值类似,如下所示:

100×(F/A,10%,4)=100×4.641=464.10(元)

②递延年金现值

递延年金的现值可用三种方法来计算。

第一种方法:把递延年金视为n 期的普通年金,求出年金在递延期期末m 点的现值,再将m 点的现值调整到第一期期初。即

第二种方法:先假设递延期也发生收支,则变成一个(m+n)期的普通年金,算出(m+n)期的年金现值,再扣除并未发生年金收支的m 期递延期的年金现值,即可求得递延年金现值。即

第三种方法:先算出递延年金的终值,再将终值折算到第一期期初,即可求得递延年金现值。

【例2-12】 某企业年初投资一项目,希望从第5年开始每年年末取得10万元收益,投资期限为10年,假定年利率为5%。计算该企业年初最多投资多少元才有利。

解 第一种方法:P=A(P/A,5%,6)×(P/F,5%,4)

             =10×5.075 7×0.822 7=41.76(万元)

第二种方法:P=A[(P/A,5%,10)-(P/A,5%,4)]

           =10×(7.721 7-3.546 0)=41.76(万元)

第三种方法:P=A(F/A,5%,6)×(P/F,5%,10)

           =10×6.801 9×0.613 9=41.76(万元)

从计算中可知,该企业年初的投资额不超过41.76万元才合算。

(4)永续年金

无限期定额支付的年金称为永续年金。它是普通年金的一种特殊形式,由于永续年金的期限趋于无限,没有终止时间,因而也没有终值,只有现值。

永续年金的现值可以通过普通年金现值的计算公式导出:

当n→∞时,(1+i)-n的极限为零,故上式可写成:P=A/i。

【例2-13】 拟建立一项永久性奖学金,每年计划颁发10 000 元奖金。若年利率为10%,现在应存入多少钱?

解 P=A/i=10 000/10%=100 000(元)