组合体的尺寸注法

第三节 组合体的尺寸注法

组合体的视图只能反映其形状,不能反映其大小及各部分之间精确的相对位置,因此,必须标注尺寸。

尺寸标注应“正确、齐全、清晰”。

所谓正确,是指尺寸标注应符合第一章所述的尺寸标注的基本准则。

尺寸齐全,应包括:定形尺寸、定位尺寸、总体尺寸。

(1)尺寸齐全是指所注尺寸应完全确定组合体各组成部分的大小和它们之间的相对位置。为做到尺寸齐全,应注全三类尺寸。

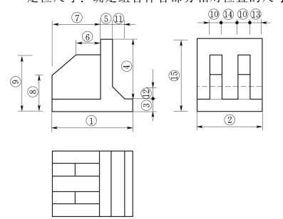
图6-7 扶壁式挡土墙尺寸注法

定形尺寸:即确定各部分形状大小的尺寸。要在形体分析的基础上,分别标注各部分的定形尺寸。

定位尺寸:确定组合体各部分相对位置的尺寸。标注定位尺寸时,要选定长、宽、高三个方向的定位基准,物体的端面、轴线和对称面均可作为定位基准。

总体尺寸:确定组合体总长、总宽、总高的尺寸。

(2)尺寸清晰。为读图方便,所注尺寸应排列整齐,便于查找。标注时应注意以下几个问题:

1)尺寸应尽量标注在反映形体形状特征的视图上,而且要靠近被注线段,表示同一结构或形体的尺寸应尽量集中在同一视图上。

2)与两视图有关的尺寸,应尽量标注在两视图之间。

3)尽量避免在虚线上标注尺寸。

4)尺寸线尽可能排列整齐。

尺寸标注除应满足上述要求外,对于工程形体的尺寸标注还应满足设计和施工要求。这需要具备一定的专业知识后才能逐步做到。

下面我们标注扶壁式挡土墙的尺寸。如图6-7所示。

首先标注定形尺寸。按照形体分析结果,分别标注每部分的定形尺寸。底板的定形尺寸①、②、③,直墙的定形尺寸⑤、④、②,扶壁定形尺寸⑥、⑦、⑧、⑨、⑩,贴角定形尺寸[11]、[12]、[10]。考虑到要标注在反映形体特征的视图上,而且要靠近被注线段,所以长度尺寸和高度尺寸都标注在正视图上。

接下来标定位尺寸。直墙的左右位置需要确定,尺寸⑦即是扶壁定形尺寸,也是直墙的定位尺寸。扶壁的前后位置需要确定,因此应标注尺寸[13]、[14]。

再标注总体尺寸①、②、[15]。

由于直墙高度尺寸④=[15]-③,可省去不注,将[12]与③对齐。