建筑施工图的内容
一套完整的建施图,应包括以下图纸的内容:
(1)建筑施工图首页。包括工程名称,设计说明,图纸目录,技术经济指标,门窗统计表等。
(2)建筑总平面图。
(3)建筑各层平面图(底层、标准层、屋顶平面图)。
(4)建筑各层立面图。
(5)建筑剖面图(纵横剖切等)。
(6)建筑详图。
(一)建筑总平面图
总平面图表明工程所在位置的总体布局,包括建筑红线,新建建筑物的位置、朝向,新建建筑物和原有建筑物的关系及新建区域的道路、绿化、地形、地貌、标高等方面的内容。如图10-4所示。

图10-4 总平面布置图
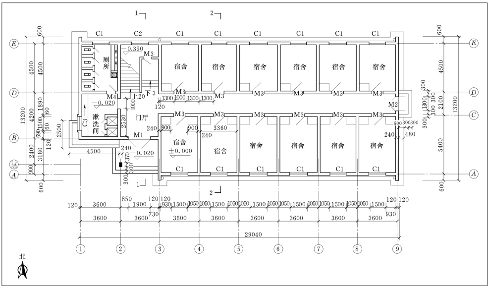
(二)平面图
假想用一个水平剖切平面沿门窗洞口将房屋剖开,移去剖切平面和上面部分,将余下部分按正投影的原理投影到水平投影面上所得到的图称为平面图。平面图分为底层平面图,二层平面图(标准层平面图),屋顶平面图等。包括:建筑物的朝向,平面布置,定位轴线,标高,墙厚(柱子的断面),门和窗,楼梯,附属设施,各种符号,平面尺寸屋顶的排水和突出屋面的物体,如图10-5和图10-6所示。
(三)立面图
表示建筑物外墙面特征的正投影,有正立面图,背立面图和侧立面图。包括建筑物的外部形状,各主要部位的相对高度,立面中的尺寸,外墙面的装饰。如图10-7和图10-8所示。
(四)剖面图
假想用一个正立投影面或侧立投影面的平行面将房屋剖开,移去剖切平面和观察者中间的部分,将剩下的部分用正投影原理投射到与剖切平面平行的投影面上,得到的图称为剖面图。内容包括:房屋内部的分隔分层情况,屋顶屋面的保温隔热情况,房屋高度方向的标高和尺寸和台阶、散水、雨篷等。如图10-9所示。
(五)详图
房屋建筑平、立面图和剖面图都是用比较小的比例绘制的,主要表达建筑物全局性的内容,但对建筑细部或构、配件的形状、构造关系无法表达清楚。因此,为详细表达建筑物的节点及建筑构件、配件的形状、材料、尺寸及做法,而用比较大的比例画出的图形,称为建筑详图或大样图。

图10-5 建筑平面图(一)

图10-6 建筑平面图(二)

图10-7 建筑立面图(一)

图10-8 建筑立面图(二)

图10-9 建筑剖面图
1.外墙身详图
外墙身详图一般画在门窗洞口处,主要表示地面、屋面、楼面和墙体的关系,同时也表示排水沟、散水、勒脚、窗台、屋檐、女儿墙、天沟、排水口、雨水管的位置和构造做法。如图10-10所示。
2.楼梯详图
一般包括楼梯平面图、楼梯剖面图和踏步、栏杆、扶手详图。如图10-11所示。