四、Mline(多线)命令
AutoCAD中提供了MLINE命令用于绘制多重平行线。另外,还提供了MLEDIT命令用于修改两条或多条多线的交点及封口样式,MLSTYLE命令用于创建新的多线样式或编辑已有的多线样式。
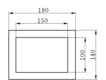
【例11-4】 利用多线命令绘制图11-13所示的图形。
命令:mline
MLINE

图11-13
当前设置:对正=上,比例=20.00,样式=STANDARD
指定起点或[对正(J)/比例(S)/样式(ST)]:50,50(直角绝对坐标)
指定下一点:150(方向距离,下同)
指定下一点或[放弃(U)]:100
指定下一点或[闭合(C)/放弃(U)]:150
指定下一点或[闭合(C)/放弃(U)]:c