项目二 省赛焊接样题

项目二 省赛焊接样题

一、焊接样题

1.12 mm碳钢板对接仰焊(手工电弧焊111)

2.12 mm碳钢板对接仰焊(CO2气体保护焊135)

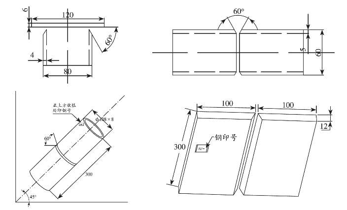
3.108×125×8碳钢管对接斜45度固定焊(手工电弧焊111)

4.108×125×8碳钢管对接斜45度固定焊(CO2气体保护焊135)

5.60×125×5碳钢管对接水平固定焊(钨极氩弧焊141)

6.80×100×4铝合金管板骑座式仰角氩弧焊(钨极氩弧焊141)

竞赛项目总时间为180分钟,包括打磨、组对、焊接、清理、休息、饮水、上洗手间的时间,参赛选手必须在规定时间内独立完成所有项目。焊工操作备料单:

注:试件应采取机加工方式进行加工,以保证表面质量。

项目示意图见图:

实际操作单项满分为100分,竞赛配分情况如下表:

(一)板对接仰焊外观检查项目及评分标准

注:1.正、反两面满分为60分。
2.表面有气孔、裂纹、夹渣、未熔合、未焊透、焊瘤等缺陷之一,外观做0分处理。
3.焊缝未盖面,焊缝表面及根部有修补或试件做舞弊标记,该项目做0分处理。

(二)斜45°管固定外观检查项目及评分标准

(三)管—管对接水平固定氩弧焊焊试件外观检查项目评分表

注:1.正、反两面满分为60分。
2.表面有气孔、裂纹、夹渣、未熔合、未焊透、焊瘤等缺陷之一,外观做0分处理。
3.焊缝未盖面、焊缝表面及根部经修补或试件做舞弊标记的,该单项做0分处理。

(四)铝合金板/管结构外观检查项目及评分标准

注:1.正、反两面满分为100分。
2.表面有裂纹、未熔合、焊瘤等缺陷之一,外观做0分处理。
3.焊缝未盖面、焊缝表面及根部经修补或试件做舞弊标记的,该单项做0分处理。