3.4.1 案例1——A3(横放)样板图
创建样板图是一件比较常见的事情,用户可以将绘图环境设置到样板图内,方便使用。样板图的内容包括图层、自动捕捉样式和自动追踪等。下面讲解A3样板图(图3-58)的设置。
【思路分析】
首先,打开前文创建的“图层样板.dwt”,设置绘图环境,绘制图纸外框和标题栏,如图3-59所示,保存为新的图纸样板。
【光盘文件】
——参见附带光盘中的“END\Ch3\3-4-1.dwg”文件。
——参见附带光盘中的“AVI\Ch3\3-4-1.avi”文件。

图3-58 A3幅面横放的图框

图3-59 国家标准标题栏
【操作步骤】
1)打开“应用1”中保存好的文件“图层样板.dwt”,并且另存为“应用2.dwg”。这样文件继承了“应用1”中设置好的图层特性,无须读者再重新设置了。
2)设置绘图环境。单击“应用程序”状态栏中的“栅格显示”按钮,使其处于浮起状态,关闭栅格显示。
3)单击“应用程序”状态栏中的“极轴追踪”“对象追踪”和“对象捕捉”按钮,使其处于按下状态,打开极轴追踪模式、对象追踪模式和对象捕捉模式。
4)在命令行输入UNITS,按〈Enter〉键确认,打开“图形单位”对话框,设置长度和角度的精度,和图形插入的单位,如图3-60所示。
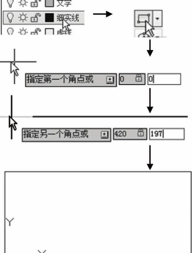
5)绘制图框和标题栏。切换图层到“细实线”图层,单击绘图面板的“矩形”按钮或者命令输入rec,进入矩形绘图状态。根据命令行提示:“输入第一个角点”,输入“0”,接着按下〈Tab〉键,再输入“0”输入纵坐标,按下〈Enter〉键,完成左下角点输入。同样方法按照坐标(420,297)完成右上角点的输入,如图3-61所示。

图3-60 “图形单位”对话框
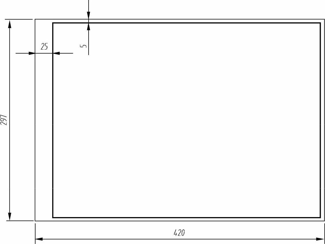
6)切换图层到“轮廓线”图层,单击绘图面板的“矩形”按钮或者命令输入rec,进入矩形绘图状态。根据命令行提示“输入第一个角点”,输入“25”,接着按下〈Tab〉键,再输入“5”为纵坐标,按下确认键,完成左下角点输入。同时按下〈Crtl〉键和鼠标右键,下拉菜单选择“自”,把光标移动到外框右上角点单击,根据命令行提示“偏移”,输入“-5”,接着按下〈Tab〉键,再输入“-5”完成右上角点的输入,如图3-62所示。
7)使用绘图和编辑工具绘制在A3幅面横放图纸的右下角绘制国家标准的标题栏,如图3-59所示。由于操作比较简单,所以不再详细列出,注意标题栏外框用轮廓线,网格线用细实线。
8)单击窗口左上方“另存为”
按钮,弹出“图形另存为”窗口,修改“文件类型”为“AutoCAD图形样板(*.dwt)”,并输入文件名称为“A3横放图纸”。单击“保存”按钮,完成操作。后面需要画图的时候,直接打开这个文件,就能继承原来的图层特性、绘图环境和设置好的图框与标题栏。

图3-61 绘制外图框

图3-62 绘制内图框