8.2.2 应用2——复制图形插入法绘制定滑轮装配图
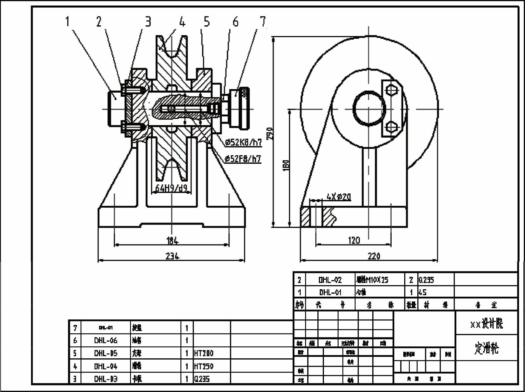
绘制图8-53所示的定滑轮装配图。

图8-53 定滑轮装配图
【思路分析】
使用复制图形插入法绘制装配图,先将各个零件绘制完成,然后根据装配的需要依次打开各个零件图,将其复制粘贴到新建的装配图文件中进行装配,对插入的图形做进一步的修改编辑即可。
【光盘文件】
——参见附带光盘中的“END\Ch8\8-2-2.dwg”文件。
——参见附带光盘中的“AVI\Ch8\8-2-2.avi”文件。
【操作步骤】
1)新建一个图形文件,设置图层、文字样式、尺寸标注样式、多重引线样式和表格样式等,用于绘制装配图。设置完成后,不必关闭图形文件。
2)打开附带光盘中的文件“支架”文件,如图8-54所示。

图8-54 支架零件图
将零件图的“标注”图层关闭,如图8-55所示。

图8-55 关闭标注图层的支架零件图
使用“交叉”或“窗口”方式选中主视图和左视图,单击右键,在弹出的快捷菜单中选择“剪贴板”→“带基点复制”命令,系统提示“指定基点:”,选择主视图底座上的左下角点为基点,复制主视图和左视图,如图8-56所示。

图8-56 带基点复制支架主视图和左视图
在窗口处打开前面新建的“装配图”文件,在装配图绘图区,单击右键,在弹出的快捷菜单中选择“剪贴板”→“粘贴”命令或直接按下〈Ctrl+V〉组合键,在合适的位置单击左键,将支架主视图和左视图放置在装配图中,如图8-57所示。

图8-57 粘贴插入支架到装配图
3)打开“心轴”零件图,将“标注”图层关闭,使用“带基点复制”命令复制心轴,基点选择如图8-58所示。然后切换到装配图窗口,将心轴粘贴插入到指定位置。

图8-58 装配心轴
对插入心轴后的装配图主视图修改,包括剖面线、重合的线段等,如图8-59所示。并根据对应关系在左视图绘制心轴,如图8-60所示。

图8-59 修改装配心轴后的主视图
4)打开油杯零件图,将“标注”图层关闭,将油杯主视图使用“带基点”复制到装配图中,基点如图8-61所示。

图8-60 修改装配心轴后的左视图

图8-61 装配油杯
对插入后的油杯进行修改,完成后如图8-62所示。

图8-62 修改装配后的油杯
5)打开旋盖的零件图,将“标注”图层关闭,将旋盖使用“带基点复制”插入到装配图中,基点如图8-63所示。

图8-63 装配旋盖
对插入后的旋盖进行修改,完成后如图8-64所示。

图8-64 修改装配后的旋盖
6)打开滑轮零件图,将“标注”图层关闭,使用“带基点复制”将滑轮主视图粘贴插入到装配图中,基点如图8-65所示。
对插入后的滑轮进行修改,完成后如图8-66所示。

图8-65 装配滑轮

图8-66 修改装配后的滑轮
根据对应关系,将滑轮在左视图的轮廓补上,完成后如图8-67所示。

图8-67 绘制左视图中的滑轮
7)打开卡板零件图,将“标注”图层关闭,使用“带基点复制”将卡板的主视图和全剖的俯视图粘贴插入到装配图的任意位置,基点可以为任意一点。
在装配图中,使用“旋转”命令将卡板两个视图顺时针旋转90。,然后使用“移动”命令,放置指定位置,如图8-68所示。

图8-68 在主视图装配卡板
在主视图中,装配卡板后,为了表达清楚卡板和支架的安装情况,需要对安装的部位使用局部剖视图将螺纹孔表达清晰,并绘制上螺栓,如图8-68所示。
在左视图中,将卡板装配后,只需对重合的线段进行修改,并根据对应关系将螺栓头补上,如图8-69所示。

图8-69 在左视图装配卡板
8)装配图的装配已完成,绘制一个A3的图框,尺寸如图8-70所示。

图8-70 绘制图框
使用“缩放”命令将装配图按比例“0.5”进行缩放,然后将其移动到新建的图框中,如图8-71所示。
为了标注正确的尺寸,需要建立一个尺寸标注样式,将其命名为“1∶2比例标注”,在“新建标注样式”对话框中的“主单位”选项卡,将“比例因子”设置为2即可。标注样式列表如图8-72所示。

图8-71 缩放图形并移进图框

图8-72 设置标注样式
9)对装配图进行尺寸标注,完成后如图8-73所示。

图8-73 标注尺寸
10)标注零件序号,并添加标题栏、明细栏和标注技术要求,便完成装配图的全部标注。