6.6.1 案例1——标注零件尺寸
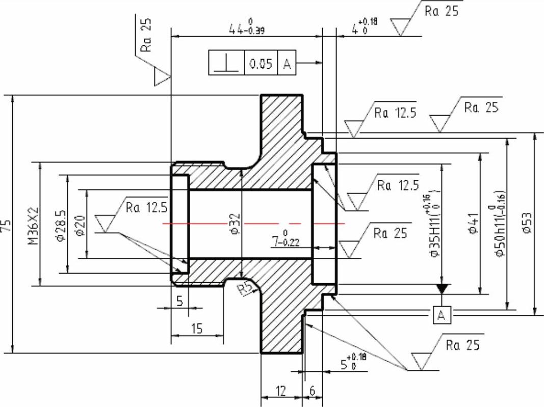
尺寸的标注还包括表面粗糙度的标注,打开目录中保存好的零件图形,对图形进行标注,完成的标注图如图6-269所示。
【思路分析】
该零件图的标注难点在表面粗糙度的标注。要标注表面粗糙度,先将其制作成块,然后插入即可。需要注意的是表面粗糙度的文字方向,要根据标注要求,制作不同的块。

图6-269 零件标注图
【光盘文件】
——参见附带光盘中的“START\Ch6\6-6-l.dwg”文件。
——参见附带光盘中的“END\Ch6\6-6-l.dwg”文件。
——参见附带光盘中的“AVI\Ch6\6-6-l.avi”文件。
【操作步骤】
1)打开附带光盘中保存好的附带文件。
2)新建一个标注主样式和用于“引线”标注子样式。建立步骤和前面实例的相同。读者可自由建立尺寸标注样式。
3)单击“图层”面板中的“图层选择”下拉列表切换“标注”图层为当前图层
4)选择“快速标注”命令,系统提示“选择要标注的几何图形”,分别单击选择图形的下列几条边,如图6-270所示。

图6-270 选择快速标注的对象
完成选择后,按下〈Enter〉键,系统提示“指定尺寸线位置或[连续(C)/并列(S)/基线(B)/坐标(O)/半径(R)/直径(D)/基准点(P)/编辑(E)/设置(T)]<连续>:”,输入S,按〈Enter〉键,选择“并列”方式,移动光标,单击鼠标左键,放置尺寸,如图6-271所示。

图6-271 快速标注图形
5)继续快速标注命令,系统提示“选择要标注的几何图形:”,分别单击选择图形的下列几条边,如图6-272所示。

图6-272 选择快速标注的对象
完成选择后,按下〈Enter〉键,如图6-273所示,系统提示“指定尺寸线位置或”,由于在上一步操作中选择过“并列”方式,系统默认继续采用“并列”方式,移动光标,放置好尺寸线即可。

图6-273 快速标注的图形
6)继续“快速标注”命令,系统提示“选择要标注的几何图形:”,分别单击选择图形的下列几条边,如图6-274所示。

图6-274 选择快速标注的对象
完成选择后,按下〈Enter〉键,如图6-275所示,系统提示“指定尺寸线位置或[连续(C)/并列(S)/基线(B)/坐标(O)/半径(R)/直径(D)/基准点(P)/编辑(E)/设置(T)]:”,输入C,按〈Enter〉键,选择“连续”方式,然后移动光标,放置好尺寸,完成标注。

图6-275 快速标注的图形
7)编辑尺寸。因为“快速标注”没有提供“多行文字”选项功能,所以无法在标注过程中添加直径符号或者公差值。双击标注好的尺寸,文字处于可编辑状态,输入直径符号、螺纹标注,公差值,按照图6-269的要求,完成后如图6-276所示。

图6-276 编辑尺寸
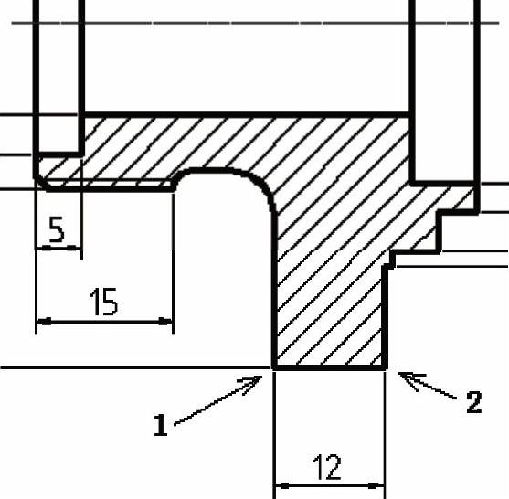
8)选择“线性”命令,分别选择图6-276中所指两个端点为尺寸界线原点,完成后如图6-277所示。

图6-277 标注线性尺寸
9)选择“基线”命令,尺寸基准如果不是上一步标注的尺寸5的左边尺寸线,要重新选择,系统提示“指定第二条尺寸界线原点或[放弃(U)/选择(S)]<选择>:”,选择图6-278中所指端点,最后按下〈Enter〉键,结束命令。

图6-278 标注基准尺寸
10)选择“线性”命令,选择图6-279中所指两点为尺寸界线原点。

图6-279 标注线性尺寸
11)选择“连续标注”命令,连续尺寸的基准一定要是上一步标注的尺寸12的右边尺寸界线,否则,需要重新选择。系统提示“指定第二条尺寸界线原点或[放弃(U)/选择(S)]<选择>:”,选择图6-280中所指端点,最后按下〈Enter〉键,结束命令。

图6-280 标注连续尺寸
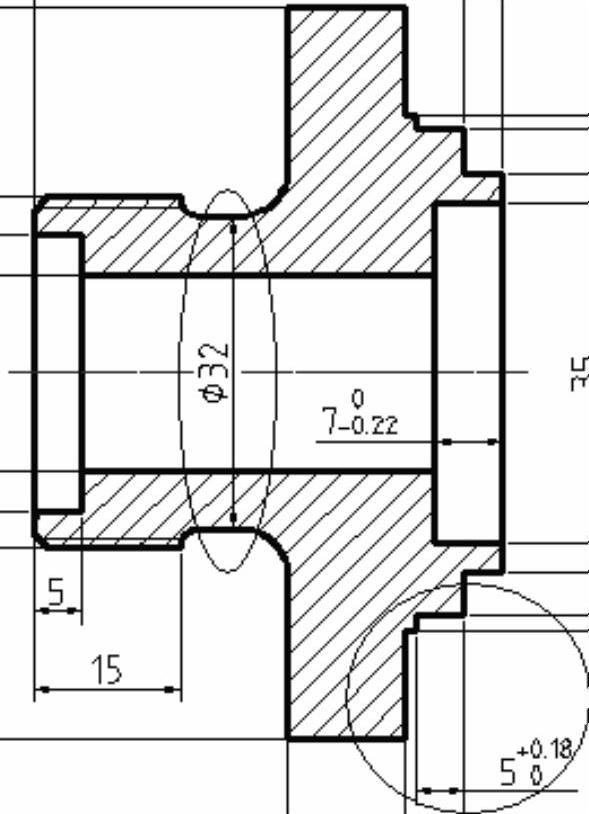
12)选择“线性”命令,分别选择图6-281中所指两点为尺寸界线原点,系统接着提示“指定尺寸线位置或[多行文字(M)/文字(T)/角度(A)/水平(H)/垂直(V)/旋转(R)]:”,输入M,按〈Enter〉键,进入多行文字输入状态,在7后面输入“
”(在0前面输入一个空格,为了与0.22在同一垂直面上),然后堆叠“
”,关闭文字编辑器,放置好尺寸。

图6-281 标注尺寸公差
13)继续线性标注命令。标注零件中间部位的直径尺寸,选择“文字”选项功能,添加直径符号,输入“%%C<>”,标注完成后,使用“打断”修改命令,将中心线与尺寸的重合位置打断。
标注右端面的阶梯圆台的高度,选择“多行文字”选项功能,输入尺寸公差“
(空格)0”,然后堆叠文字,完成后如图6-282所示。

图6-282 标注直径与尺寸公差
14)选择“半径”标注命令,标注连接处的半径,如图6-283所示。

图6-283 标注半径
15)制作“块”用于表面粗糙度标注。先绘制一个表面粗糙度标注符号,根据文字的设定高度,表面粗糙度符号的尺寸如图6-284所示。

图6-284 表面粗糙度符号尺寸
在功能区“默认”选项卡中的“块”面板,选择“定义属性”命令,系统打开“属性定义”对话框,如图6-285所示。

图6-285 选择块定义属性命令
“属性”选项组,在“标记”框中,输入“粗糙度值”;在“提示”框中,输入“请输入粗糙度值”;在“默认”框中,输入“Ra 25”;“文字设置”选项组,在“对正”下拉列表中,选择“正中”;“文字样式”中选择“制图文字”;“文字高度”框中,输入“3.5”;在“旋转”框中,采用默认值“0”。单击“确定”按钮,完成设置,如图6-286所示。

图6-286 “属性定义”对话框
单击“确定”按钮后,系统提示“指定起点”,在表面粗糙度符号的合适位置方式放置标注值,即可完成属性定义,如图6-287所示。

图6-287 属性定义
接着定义块。在功能区“默认”选项卡中的“块”面板,选择“创建”命令,系统打开“块定义”对话框。在“名称”框中,输入“粗糙度”,如图6-288所示。

图6-288 输入块名称
“基点”选项中,单击“拾取点”
,系统提示“指定插入基点”,指定粗糙度符号的下角点,如图6-289所示。

图6-289 指定块插入点
在“对象”选项组,单击“选择对象”
,系统提示“选择对象”,使用“窗口”选择方式选中整个粗糙度标注符号,按下〈Enter〉键,如图6-290所示。

图6-290 选择块对象
返回到“块定义”对话框中,其他设置采用默认设置,单击“确定”按钮,完成块的定义。
16)在功能区“默认”选项卡中的“块”面板,选择“插入”命令,系统打开“插入”对话框。在“名称”下拉列表中,选择“粗糙度”,单击“确定”按钮,在图6-291中所指位置标注三个表面粗糙度,输入相对应的值,将与表面粗糙度值重合的线段打断。

图6-291 标注表面粗糙度1
必要时,也可以用带箭头的指引线引出标注,如图6-292所示。

图6-292 标注表面粗糙度2
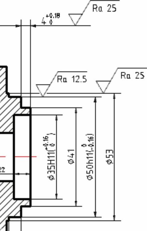
标注垂直面上的表面粗糙度值。选择“插入”命令,系统打开“插入”对话框,继续选择“粗糙度”“旋转”选项组中,在“角度”框中输入“90”,其他值采用默认值,然后单击“确定”按钮,在图6-293中所指位置标注表面粗糙度。

图6-293 标注表面粗糙度3
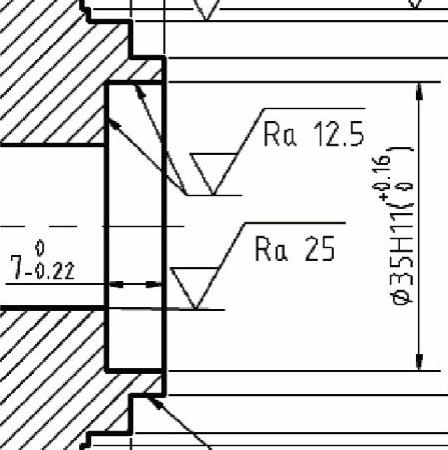
17)继续标注表面粗糙度。标注左端沉孔的表面粗糙度,调整相关尺寸的位置,然后使用指引线引出标注,如图6-294所示。

图6-294 标注表面粗糙度4
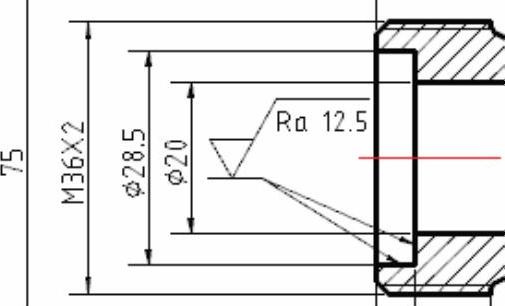
接着继续标注零件右端沉孔和中间通孔的表面粗糙度,中间通孔的表面粗糙度需要先绘制一条细线作为延长线,再在其上面标注,标注后如图6-295所示。

图6-295 标注表面粗糙度5
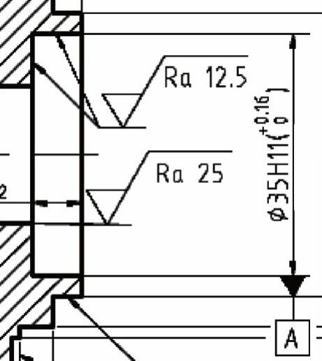
18)标注几何公差。使用LEADER引线命令标注,完成后如图6-296所示。

图6-296 标注几何公差
标注几何公差基准。使用绘图命令和文字标注命令绘制,不再赘述,完成后如图6-297所示。

图6-297 标注几何公差基准
至此,图形的标注全部完成。