6.3 实例·知识点——引线与公差标注图形
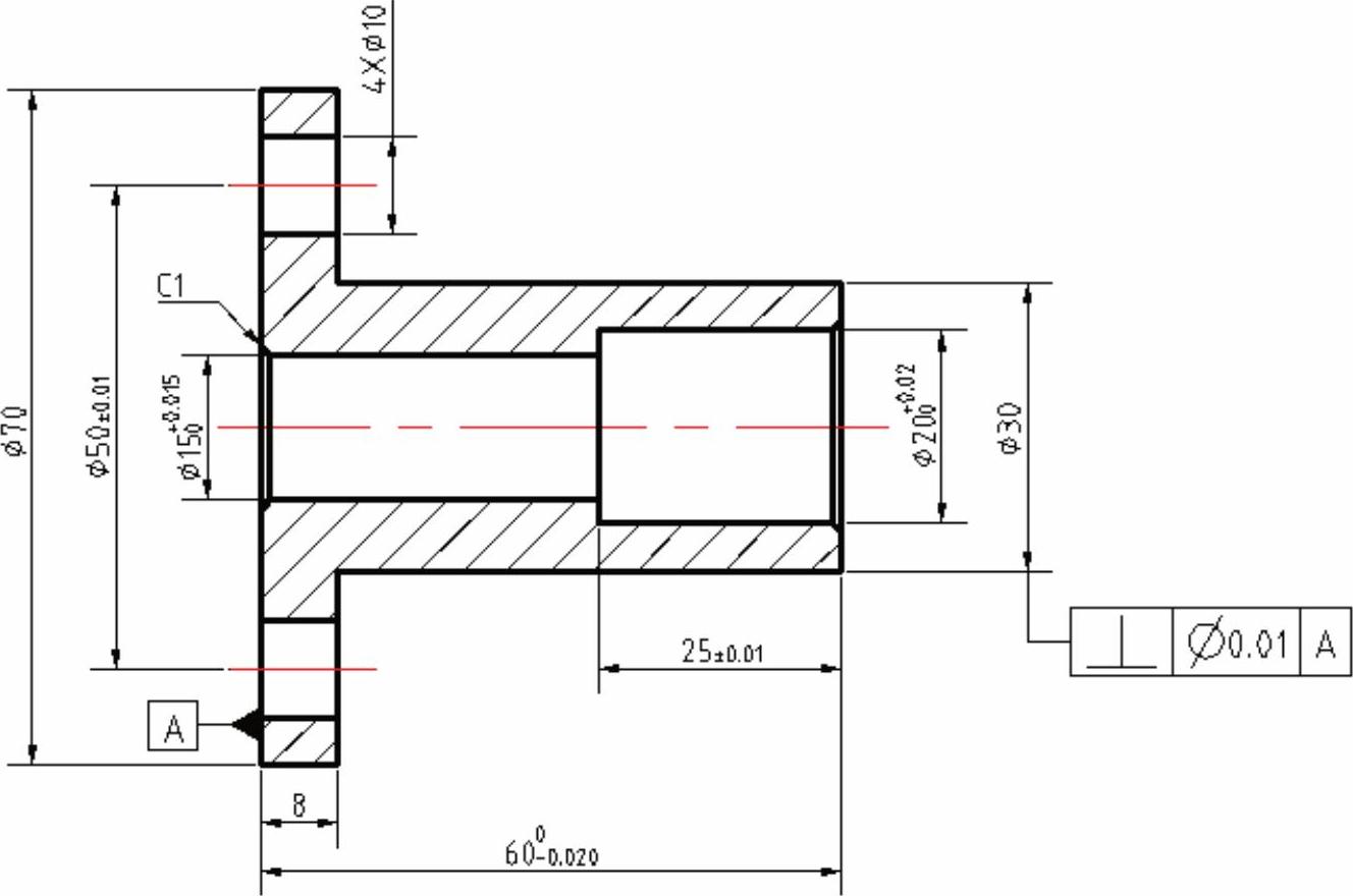
这一节主要讲解引线,尺寸公差和几何公差的标注。先通过一个实例的操作来初步了解这些命令的使用,打开目录中已保存好的图形,新建一个尺寸标注样式,使用引线,尺寸标注命令来标注图形,标注好的零件图如图6-129所示,是一个轴套类零件。

图6-129 轴套类零件尺寸标注图
【思路分析】
在这个尺寸标注图中涉及尺寸公差、几何公差和倒角标注,对标注命令的使用提出了进一步的要求,使用AutoCAD2014软件提供的引线、尺寸标注命令完成对图形的标注。
【光盘文件】
——参见附带光盘中的“START\Ch6\6-3.dwg”文件。
——参见附带光盘中的“END\Ch6\6-3.dwg”文件。
——参见附带光盘中的“AVI\Ch6\6-3.avi”文件。
【操作步骤】
1)打开附带光盘中保存好的附带文件。
2)新建一个标注样式。
先建立一个主标注样式,建立步骤和前面实例的类似,标注样式名称为“制图标注”,基于“ISO-25”的标注样式建立的。
因为标注中涉及了引线标注,所以要建立一个用于引线标注的子样式。如图6-130所示,在“标注样式管理器”中单击“新建”按钮,在弹出的“创建新标注样式”对话框中的“基础样式”下拉列表框中选择“制图标注”,在“用于”下拉列表框中选择“引线和公差”,单击“继续”按钮。

图6-130 新建引线和公差标注子样式
单击“继续”按钮后,如图6-131所示,在“新建标注样式:制图标注:引线”对话框的“符号和箭头”选项卡,将“箭头”选项组中的“引线”设置为“实心箭头”,设置“箭头大小”为2.5,单击“确定”按钮关闭对话框,完成“引线和公差”标注子样式的设置。

图6-131 设置符号和箭头
单击“确定”按钮,完成“引线和公差”尺寸标注的子样式的设置,如图6-132所示。

图6-132 标注样式列表
3)单击“图层”面板中的“图层选择”下拉列表切换“标注”图层为当前图层。
4)选择“线性”标注命令,两个尺寸界线的原点分别为图6-133所示中所指端点。

图6-133 标注线性尺寸
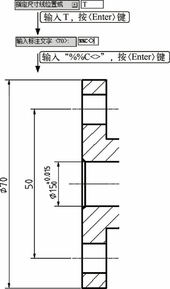
如图6-134所示,系统随后提示“指定尺寸线位置或[多行文字(M)/文字(T)/角度(A)/水平(H)/垂直(V)/旋转(R)]:”,输入M,按〈Enter〉键,在功能区上方显示“文字编辑器”,尺寸文字为可编辑状态,在尺寸文字15前面输入“%%C”,在15后面输入“+0.015^0”;然后选中“+0.015^0”,单击鼠标右键,在弹出的选项列表中,选择“堆叠”选项,在绘图区空白区域单击左键,退出文字编辑器;系统提示“指定尺寸线位置或”,放置尺寸线,完成标注。

图6-134 线性标注多行文字输入
5)继续线性标注命令,标注4个通孔的定位圆大小,标注完成后如图6-135所示。

图6-135 标注两通孔的定位圆
6)继续线性标注命令,标注零件左端面的直径。两个尺寸线界点为图6-136中所指端点。

图6-136 线性标注左端面直径
如图6-137所示,系统提示“指定尺寸线位置或[多行文字(M)/文字(T)/角度(A)/水平(H)/垂直(V)/旋转(R)]:”,输入T,按〈Enter〉键,系统提示“输入标注文字<70>:”,输入“%%C<>”,按〈Enter〉键,放置尺寸线,完成标注。

图6-137 线性标注左端面直径
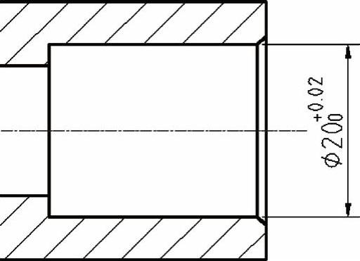
7)继续线性标注命令。运用步骤4)的多行文字方式标注右端面的孔的直径,标注完成后如图6-138所示。

图6-138 线性标注右端面孔直径
8)继续线性标注命令。使用步骤6)的操作方法标注右端面直径,标注完成后如图6-139所示。

图6-139 线性标注右端面直径
9)继续线性标注命令,同样的操作方法,标注左端面4个通孔的直径,在测得的默认尺寸数值前面添加“4×%%C”,完成后如图6-140所示。

图6-140 线性标注左端面通孔直径
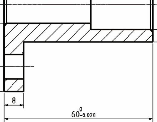
10)继续线性标注命令,标注左端面的厚度,标注完成后如图6-141所示。

图6-141 线性标注左端面通孔直径
11)继续线性标注命令,标注零件的总长度,使用“多行文字”方式的文字堆叠功能,为尺寸添加公差,完成后如图6-142所示。

图6-142 线性标注零件长度
12)继续线性标注命令,标注右端面中心孔的深度,标注完成后如图6-143所示。

图6-143 线性标注右端面中心孔深度
13)单击“标注、标注样式”按钮,系统打开“标注样式管理器”,在“样式列表”中,选中“制图标注”样式,单击“替代”按钮,系统打开“替代当前样式:制图标注”对话框;在“主单位”选项卡的“前缀”输入框中,输入直径符号“%%C”,如图6-144所示。

图6-144 设置替代样式主单位
在“公差”选项卡的“方式”下拉列表框中,选择“对称”方式;在“精度”下拉列表框中,选择“0.00”选项,在“上偏差”微调框中,输入公差值“0.01”;在“高度比例”微调框中,输入比例值“0.7”;单击“确定”按钮,完成设置,如图6-145所示。

图6-145 设置替代样式公差
14)将修改过的“样式替代”置为当前,关闭“标注样式管理器”,选择“尺寸更新”命令。系统提示“选择对象”,单击选择左端面四个通孔的定位圆尺寸50,按下〈Enter〉键,完成更新,如图6-146所示。

图6-146 更新尺寸
15)使用同样的方法对右端面中心孔的深度25添加对称公差,对当前标注样式进行替代,去掉上一步“主单位”中的直径符号前缀,尺寸更新后如图6-147所示。

图6-147 更新尺寸
16)标注倒角符号。输入快速引线标注命令QLEADER,按〈Enter〉键,系统提示“指定第一个引线点或[设置(S)]<设置>:”,直接按下〈Enter〉键,系统打开“引线设置”对话框,单击“引线和箭头”选项卡,在“角度约束”选项组中,将“第一段”选项设置为45°,“第二段”选项设置“水平”,如图6-148所示。

图6-148 设置快速引线标注
单击“附着”选项卡,勾选下面的“最后一行加下划线”复选框,如图6-149所示。

图6-149 设置快速引线标注
单击确定完成设置。如图6-150所示,系统提示“指定第一个引线点或”,使用对象捕捉功能指定图中所指端点为第一个引线点;系统提示“指定下一点:”,移动光标,在引线长度适宜时单击左键确定第二个点;系统提示“指定下一点:”,移动光标,单击左键;系统提示“指定文字宽度<0>:”,直接按下〈Enter〉键,采用默认值。系统提示“输入注释文字的第一行<多行文字(M)>:”,输入C1,按〈Enter〉键。系统提示“输入注释文字的下一行:”,直接按下〈Enter〉键,跳过此项输入,便完成绘制。

图6-150 标注倒角
17)标注几何公差。如图6-151所示,输入引线标注命令LEADER,按〈Enter〉键;系统提示“指定引线起点:”,使用对象捕捉功能指定右端面的直径标注“
30”的下箭头为起点。系统提示“指定下一点:”,在起点的垂直正下方合适位置指定一点;系统提示“指定下一点或[注释(A)/格式(F)/放弃(U)]<注释>:”,在水平方向右侧指定一点。系统提示“指定下一点或[注释(A)/格式(F)/放弃(U)]<注释>:”,输入A,按〈Enter〉键;系统提示“输入注释文字的第一行或<选项>:”,直接按〈Enter〉键,选择“选项”;系统提示“输入注释选项[公差(T)/副本(C)/块(B)/无(N)/多行文字(M)]<多行文字>:”,输入T,按〈Enter〉键。

图6-151 标注几何公差
如图6-152所示,系统打开一个“几何公差”对话框,单击“符号”选项第一排的黑框,弹出“特征符号”对话框,选择“垂直”特征符号。接着在“公差1”选项的第一排框中,单击黑框,黑框中出现“直径”符号,在白色输入框中,输入公差值“0.01”。在“基准1”选项第一排白色输入框中,输入基准A。
单击“确定”按钮,完成几何公差标注,如图6-153所示。
18)标注形位公差基准。在左端面绘制一个等边三角形,尺寸如图6-156所示。
输入快速引线标注命令QLEADER,按〈Enter〉键,系统提示“指定第一个引线点或[设置(S)]<设置>:”,直接按下〈Enter〉键,系统打开“引线设置”对话框;单击“引线和箭头”选项卡,在“箭头”选项,设置为“无”,如图6-154所示。

图6-152 设置几何公差

图6-153 标注几何公差

图6-154 设置几何公差基准(1)
在“附着”选项卡,取消“最后一行加下划线”的选择,在“多行文字附着”选项,“文字在左边”和“文字在右边”均选择“第一行中间”选项;然后单击“确定”按钮,完成设置,如图6-155所示。

图6-155 设置几何公差基准(2)
设置完成后,开始标注,选取上一步绘制的等边三角形的左顶点作为第一点,系统提示“指定下一点:”,水平向左拖动光标,输入距离“3.5”,按〈Enter〉键;文字宽度采用默认值“0”,输入的多行文字为A,完成后如图6-156所示。

图6-156 标注几何公差基准