3.5  习题·巩固

3.5 习题·巩固

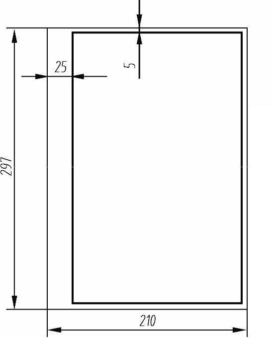
1.绘制A4幅面竖放的图形样板,图框尺寸如图3-73所示,标题栏采用简化标题栏,如图3-74所示。

978-7-111-49664-9-Chapter03-165.jpg

图3-73 A4竖放图框

978-7-111-49664-9-Chapter03-166.jpg

图3-74 简化的标题栏

2.使用捕捉功能绘制如图3-75所示的平面图形。

3.使用参数化绘图工具,完成开槽圆头螺钉约束及各部分参数定义,尺寸关系如图3-76所示,d=10。

978-7-111-49664-9-Chapter03-167.jpg

图3-75 平面图形

978-7-111-49664-9-Chapter03-168.jpg

图3-76 开槽圆头螺钉尺寸关系图