6.6.2 案例2——标注零件尺寸、技术要求和标题栏
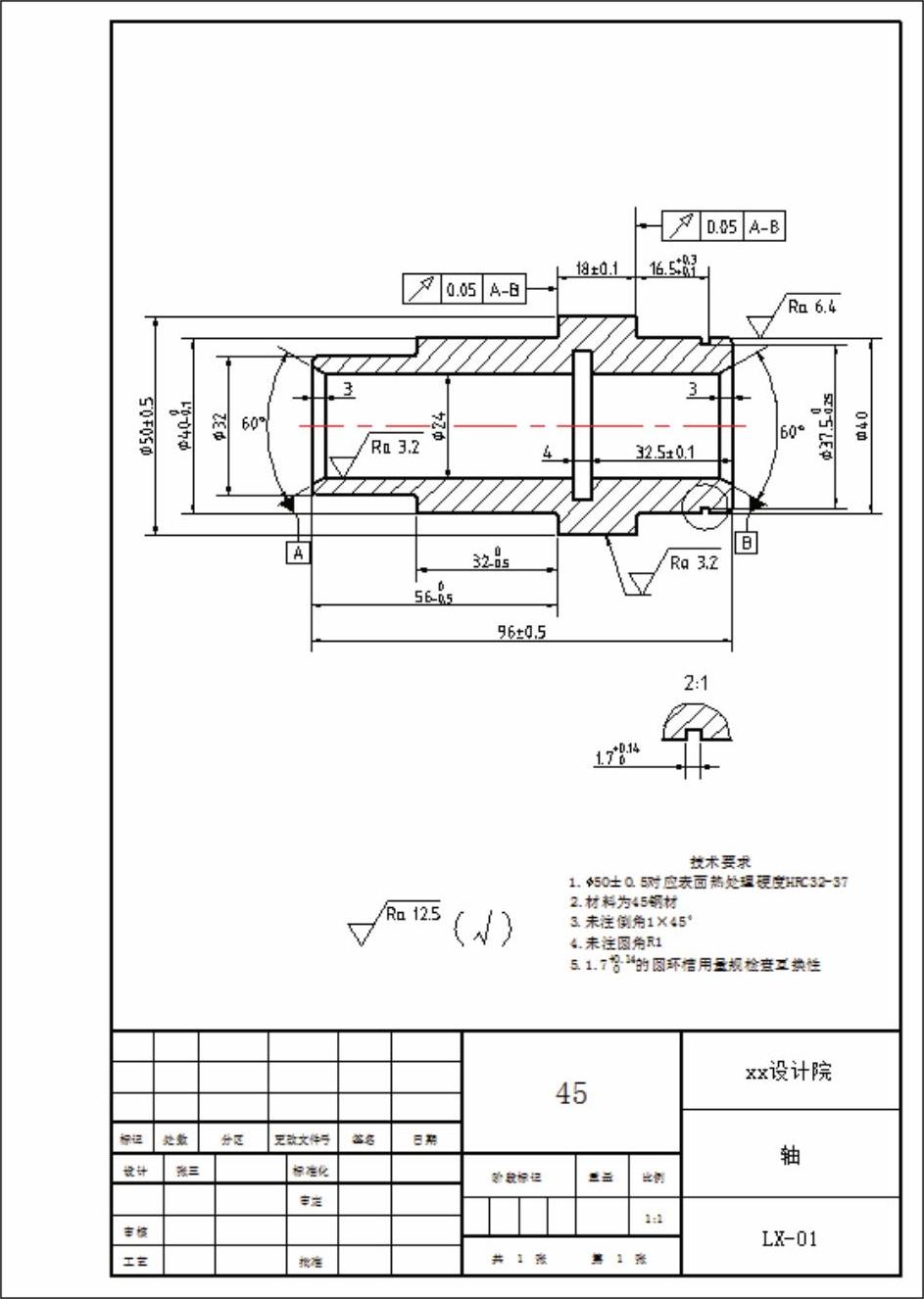
一幅完整的零件图包括尺寸标注、技术要求,图框和标题栏等,打开目录中保存好的零件图形,对图形进行尺寸标注、添加技术要求和标题栏,完成后如图6-298所示。

图6-298 轴零件图
【思路分析】
零件图中有局部放大图,其图形经过了放大,因此为了标注的正确,需要设置一个合理的比例因子。可以建立一个标注样式,专门用于局部放大图的标注。
在这个实例中将会把前面学到的尺寸标注、文本标注以及插入表格的知识系统的运用一次,标注一幅完整的零件图。
【光盘文件】
——参见附带光盘中的“START\Ch6\6-6-2.dwg”文件。
——参见附带光盘中的“END\Ch6\6-6-2.dwg”文件。
——参见附带光盘中的“AVI\Ch6\6-6-2.avi”文件。
【操作步骤】
1)打开附带光盘中保存好的附带文件,打开后如图6-299所示。

图6-299 打开保存图形
2)先建立一个文字样式。设置步骤可参考前面的实例。
3)新建一个标注样式,将其命名为“制图标注”,包含有“角度”和“引线”的标注子样式,设置步骤可参考前面实例。
另外,图形中有一个“局部放大图”,放大比例为“2∶1”,因此要设置一个标注样式,用于局部放大图的标注。
单击“标注样式管理器”对话框的“新建”按钮,在弹出的“创建新标注样式”对话框的“新样式名”框中输入名称“2∶1比例标注”,“基础样式”选择前面设置好的“制图标注”,“用于”选项设置为“所有标注”,如图6-300。单击“继续”按钮。

图6-300 新建标注样式
在“新建标注样式:2∶1比例标注”对话框中。单击“主单位”选项卡,将“测量单位比例”选项中的“比例因子”设置为0.5。其余设置直接采用“制图标注”的即可,如图6-301所示。单击“确定”按钮,完成标注样式的建立。

图6-301 设置主单位选项
标注样式列表如图6-302所示。

图6-302 标注样式列表
4)建立一个“表格”样式,设置步骤可参考前面的实例。
5)创建一个表面粗糙度标注图块,命名为“粗糙度”,创建步骤可参考前面的实例。
6)单击“图层”面板中的“图层选择”下拉列表切换“标注”图层为当前图层。
7)将当前标注样式设置为“制图标注”。
8)选择“快速标注”命令,系统提示“选择要标注的几何图形”,单击选择图6-303中所指的线段。

图6-303 选择快速标注对象
完成选择后,按下〈Enter〉键,输入S,选择“并列”方式,放置好尺寸线,完成标注,如图6-304所示。

图6-304 选择快速标注图形
9)编辑尺寸。因为快速标注命令没有“多行文字”选项功能,所以只能在标注完成后,双击尺寸进行编辑。在50前面添加直径符号“%%C”,在后面添加“±0.5”。在40前面添加直径符号“%%C”,在其后面添加尺寸公差“(空格)0^0.1”,堆叠文字。在32前面添加直径符号。全部完成后如图6-305所示。

图6-305 编辑尺寸
10)选择“快速标注”命令,系统提示“选择要标注的几何图形”,单击选择图6-306中所指的线段。

图6-306 选择快速标注的对象
选择完快速标注的对象后,按下〈Enter〉键,放置好尺寸线,即可完成标注,如图6-307所示。

图6-307 选择快速标注图形
11)编辑尺寸。给刚刚快速标注的尺寸添加直径符号和尺寸公差,完成后如图6-308所示。

图6-308 编辑尺寸
12)选择“角度”标注命令,标注左右端面的孔的倒角角度,如图6-309所示。

图6-309 标注角度尺寸
13)选择“线性”标注命令,标注左右端面的孔的倒角深度,如图6-310所示。

图6-310 标注倒角深度
14)选择“线性”标注命令,标注下图所指台阶圆的厚度,同时选择“多行文字”选项功能,输入公差“±0.1”,完成后如图6-311所示。

图6-311 标注台阶厚度
15)选择“连续标注”命令,连续尺寸的基准是上一步标注的尺寸18的右尺寸界线,以下图所指端点为第二条尺寸界线原点。标注完成后,双击尺寸,进行编辑,添加尺寸公差,完成后如图6-312所示。

图6-312 标注圆环槽定位尺寸
16)选择“线性”标注命令,标注另一个台阶圆的厚度,同时选择“多行文字”选项,添加公差“(空格)0^-0.5”并堆叠,如图6-313所示。

图6-313 标注台阶圆厚度
17)选择“基线”标注命令,基线基准为上一步标注的尺寸32的右尺寸界线,第二条尺寸界线原点为左端面的端点。标注后,双击尺寸,添加尺寸公差“(空格)0^-0.5”并堆叠,如图6-314所示。

图6-314 标注台阶圆定位尺寸
18)选择“基线”标注命令,基线基准为上一步标注的尺寸56的左尺寸界线,第二条尺寸界线原点为右端面的端点。标注后,双击尺寸进行编辑,添加尺寸公差“±0.5”,完成后如图6-315所示。

图6-315 标注零件总长
19)标注孔内的槽的定位尺寸和宽度,其中定位尺寸32.5需要添加尺寸公差“±0.1”。
标注圆孔的直径,添加直径符号。将中心线与尺寸重合的部分打断,如图6-316所示。

图6-316 标注零件其他尺寸
20)将当前标注样式设置为“2∶1比例标注”。使用“多行文字”命令在局部放大图上方标注放大比例“2∶1”。
然后选择“线性”标注命令,使用“多行文字”选项功能,添加尺寸公差“+0.14^(空格)0”,并堆叠,如图6-317所示。

图6-317 标注局部放大图
21)标注几何公差。输入引线命令LEADER,在厚度为18的台阶圆左端面标注几何公差,指定引线点后,选择“公差”选项,在弹出的“几何公差”对话框中,进行图6-318的设置。

图6-318 “几何公差”对话框
单击“确定”按钮完成标注,如图6-319所示。

图6-319 标注几何公差(1)
22)标注几何公差。标注厚度为18的台阶圆右端面标注几何公差,先从尺寸18的右尺寸线绘制一段延长线,然后使用LEADER引线命令进行公差标注,与左端面相同的几何公差,完成后如图6-320所示。

图6-320 标注几何公差(2)
23)标注几何公差基准。使用绘图命令及文本标注命令,在左右端面孔的倒角角度尺寸线处绘制几何公差基准,完成后如图6-321所示。

图6-321 绘制几何公差基准
24)标注表面粗糙度。先制作表面粗糙度的块,可参照“案例6-6-1”中的块制作步骤。然后插入块,标注表面粗糙度,完成后如图6-322所示。

图6-322 标注表面粗糙度
25)标注技术要求。使用“多行文字”命令,在合适的位置输入以下技术要求,如图6-323所示。

图6-323 标注技术要求
26)制作标题栏。可以先使用绘图命令按照尺寸要求绘制出标题栏,然后使用文本标注命令填写标题栏信息。
也可以参照“应用6-5-3”,使用表格命令制作标题栏,然后将标题栏移动至与图框的底部重合。
如果在“应用6-5-3”中,读者已经跟随步骤制作了一个标题栏,可打开保存的文件,将其复制到当前绘图环境中,插入到图框底部,然后输入标题栏信息,如图6-323所示。
标题栏完成后,零件图的标注便全部完成。