7.2.2 应用2——绘制主轴承盖零件图
绘制如图7-61所示的从动轴零件图。其中各个部分的详细信息可查看图7-62所示的尺寸标注、图7-63所示的技术要求和其余表面粗糙度的要求以及图7-64所示的标题栏。
【思路分析】
因为左视图主要是圆组成,绘制较为方便,所以先绘制左视图,然后再根据左视图与主视图的对应关系绘制出主视图。

图7-61 主轴承盖零件图

图7-62 零件尺寸图

图7-63 技术要求和其余表面粗糙度的要求

图7-64 标题栏
【光盘文件】
——参见附带光盘中的“END\Ch7\7-2-2.dwg”文件。
——参见附带光盘中的“AVI\Ch7\7-2-2.avi”文件。
【操作步骤】
1)根据前面的实例操作,建立相应的图层、文字样式、尺寸标注样式(包括角度标注子样式,引线标注子样式)以及表面粗糙度标注块。
如果已经建立好相应的绘制模板,可直接打开使用。
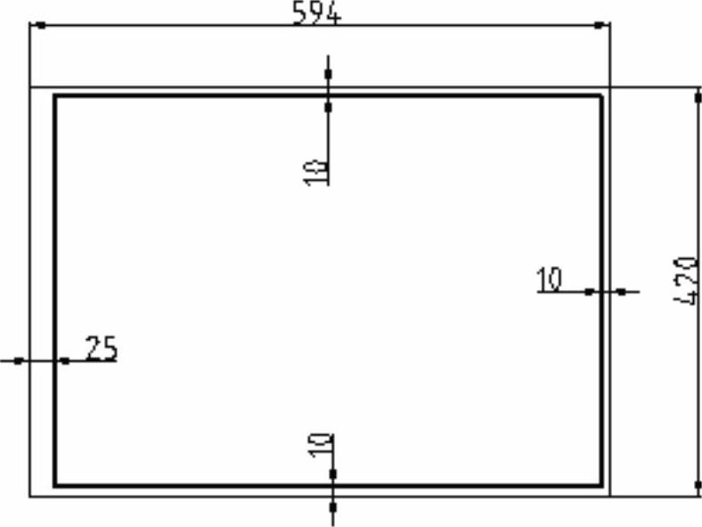
绘制一个A2的图框,外图框长和宽分别为594和420,内图框为了预留装订边,其左边与外图框的距离为25,其余各边为10,如图7-65所示。

图7-65 标题栏
2)将当前的图层设置为“中心线”,使用直线命令绘制一段水平中心线和垂直中心线,长度均为195,如图7-66所示。
3)将当前图层设置为“粗实线”,根据图7-67所给尺寸,使用圆命令绘制出左视图中的各个圆。因为零件的多个端面均已倒角,所以其在左视图的投影会形成一个圆。

图7-66 绘制中心线

图7-67 绘制左视图中的圆
4)绘制左视图中的通孔和肋板。使用圆命令绘制出通孔,使用偏移命令分别向左和向右偏移4,然后修剪掉多余的圆和偏移后的中心线,并将修剪后的中心线变换为“粗实线”图层,最后使用圆角命令绘制出圆角,如图7-68所示。

图7-68 绘制通孔和肋板
5)将绘制好的通孔和肋板使用“环形阵列”命令绘制出其余的通孔和肋板。阵列项目为6,填充角度为360,如图7-69所示。

图7-69 阵列通孔和肋板
6)修剪多余的线段,并添加上肋板和通孔的中心线,完成左视图的绘制,如图7-70所示。

图7-70 绘制好的左视图
7)绘制主视图,主视图的上下对称,可以先绘制上半部分,再镜像绘制出下半部分。使用直线命令,利用对象追踪功能,先绘制出一段水平中心线,与左视图的水平中心线处于同一水平位置,长度为50。然后继续使用直线命令,利用对象追踪功能绘制出外轮廓,忽视肋板,如图7-71所示。

图7-71 绘制主视图轮廓
8)根据图7-61中所给的尺寸绘制出肋板之间的结构,使用偏移命令绘制通孔的沉头孔,如图7-72所示。

图7-72 绘制主视图其余结构
9)倒角和圆角,如图7-73所示。倒角距离为2,角度为45°。圆角的半径为3。

图7-73 倒角和圆角
10)将主视图的上半部分使用镜像命令绘制出下半部分,如图7-74所示。

图7-74 镜像绘制主视图下半部分
11)绘制肋板的重合断面图。重合断面图只能用细实线绘制。可以先绘制一段中心线,然后使用偏移命令分别上下偏移4,修剪偏移后的中心线,并将其换为“细实线”,最后绘制圆角,如图7-75所示。

图7-75 绘制肋板断面重合图
12)将当前图层设置为“细实线”,然后填充剖面线,注意重合断面的剖面线要和其他部分的剖面线错开,如图7-76所示。

图7-76 填充剖面线
13)将当前图层设置为“标注”,标注零件的基本尺寸,如图7-77所示。

图7-77 标注零件尺寸
14)标注零件几何公差和几何公差基准,如图7-78所示。

图7-78 标注几何公差及其基准
15)引线标注通孔的信息。先使用引线命令标注“6×φ9EQS”,然后再使用文本标注命令在其下方标注
,其中符号
、
在“字符映射表”中选择AMGDT字体,找到后将其复制输入即可,如图7-79所示。

图7-79 引线标注通孔
16)标注表面粗糙度,将之前制作好的表面粗糙度标注块插入标注,如图7-80所示。
17)标注技术要求和添加标题栏,则零件图的绘制全部完成。

图7-80 标注表面粗糙度