3.4  习题

3.4 习题

习题3-1 如图3-10所示阶梯形圆轴,AB段直径d1=120mm,BC段直径d2=100mm。外力偶矩MA=20kN·m,MB=34kN·m,MC=14kN·m。材料的许用切应力[τ]=80MPa,切变模量G=80GPa,l1=2m,l2=1.5m,试校核该轴的强度,并计算截面C相对于截面A的扭转角φCA。(参考答案:τmaxAB=59MPa,τmaxBC=71.3MPa,φCA=0.125°)

习题3-2 如图3-11所示受扭转力偶作用的圆截面杆,长l=1m,直径d=20mm,材料的切变模量G=80GPa,两端截面的相对扭转角φ=0.1rad。试求此杆外表面任意处的切应变、横截面上的最大切应力和外力偶矩M。(参考答案:切应变λ=1×10-3τmax=80MPa,M=125.6N·m)

习题3-3 一薄壁圆管如图3-12所示,两端承受力偶Me的作用,使管产生扭转变形。已知圆管长l,管平均半径为R,横截面的上半圆壁厚为t1,下半圆的壁厚为t2,切变模量均为G。(1)试求扭转时横截面上的切应力;(2)试求圆管两端的相对扭转角。(参考答案:(1)978-7-111-43425-2-Chapter03-55.jpg978-7-111-43425-2-Chapter03-56.jpg;(2)978-7-111-43425-2-Chapter03-57.jpg978-7-111-43425-2-Chapter03-58.jpg

978-7-111-43425-2-Chapter03-59.jpg

图3-10 习题3-1图

978-7-111-43425-2-Chapter03-60.jpg

图3-11 习题3-2图

978-7-111-43425-2-Chapter03-61.jpg

图3-12 习题3-3图

习题3-4 如图3-13所示三种截面形状(长宽比为2的矩形、正方形和圆形)的闭口薄壁杆,若截面中心线的长度、壁厚、材料和扭矩及杆长均相同,试计算三种截面上最大切应力之比和扭转角之比。(参考答案:τmax,矩形τmax,正方形τ=1∶0.889∶0.698,θ矩形θ正方形θ=1∶0.790∶0.487)

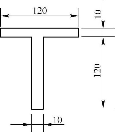
习题3-5 如图3-14所示T字形薄壁截面杆长为l=2m,材料的切变模量G=80GPa,受纯扭矩T=200N·m的作用,试求最大切应力及扭转角。(参考答案:τmax=25MPa,φ=3.58°)

978-7-111-43425-2-Chapter03-62.jpg

图3-13 习题3-4图

978-7-111-43425-2-Chapter03-63.jpg

图3-14 习题3-5图

习题3-6 外径为120mm、厚度为5mm的薄壁圆杆,受T=4kN·m的扭矩作用,试按下列两种方式计算切应力。

(1)按闭口薄壁杆件扭转的近似理论计算;

(2)按空心圆截面杆扭转的精确理论计算。

(参考答案:(1)τmax=38.5MPa;(2)τmax=40.1MPa)

习题3-7 某桥式起重机,若其传动轴的转速为27r/min,传递功率为3kW,材料的许用扭转切应力[τ]=40MPa,切变模量G=80GPa,轴的许用单位长度扭转角[φ]=1(°)/m。试选择轴的直径。(参考答案:d=53mm)

习题3-8 某空心钢轴的外径D=100mm、内径d=50mm,若要求轴在2m内的最大扭转角不超过1.5°,问它所能承受的最大扭矩为多少?并求出此时轴内的最大切应力。已知材料的切变模量G=82GPa。(参考答案:最大扭矩Tmax=9870N·m,最大切应力τmax=53.6MPa)

习题3-9 如图3-15所示,阶梯形圆轴上装有三个带轮。已知各段轴的直径分别为d1=38mm,d2=75mm,主动轮B的输入功率P3=32kW,从动轮AC的输出功率分别为P1=14kW,P2=18kW;轴的额定转速n=240r/min,材料的许用扭转切应力[τ]=60MPa,切变模量G=80GPa,轴的许用单位长度扭转角[φ′]=1.8(°)/m,试校核该轴的强度和刚度。(参考答案:τADmax=51.6MPa,τCBmax=15.3MPa,强度满足;φAD′=1.9(°)/m,φ′CB=0.29(°)/m,不满足刚度要求)

978-7-111-43425-2-Chapter03-64.jpg

图3-15 习题3-9图

习题3-10 如图3-16所示,矩形截面钢杆受到扭转外力偶矩Me=3kN·m的作用。已知材料的切变模量G=80GPa,试求:(1)杆内的最大切应力;(2)横截面短边中点处的切应力;(3)杆的单位长度扭转角。(参考答案:(1)τmax=40.1MPa;(2)τ=34.4MPa;(3)φ′=0.564(°)/m)

习题3-11 空心钢轴的外径D=100mm,内径d=50mm,已知间距为l=2.7m的两横截面的相对扭转角φ=1.8°,材料的切变模量G=80GPa。试求:(1)轴内的最大切应力;(2)当轴以n=80r/min的速度旋转时,轴所传递的功率。(参考答案:(1)τmax=46.5MPa;(2)P=71.8kW)

习题3-12 直径d=25mm的钢圆杆,受轴向力60kN作用时,在标距为200mm的长度内伸长了0.113mm。当其承受一对扭转外力偶矩Me=0.2kN·m时,在标距为200mm的长度内相对扭转了0.732°的角度。试求钢材的弹性常数EGμ。(参考答案:E=216GPa,G=81.6GPa,μ=0.324)

习题3-13 已知实心圆轴的转速n=300r/min,传递的功率P=330kW,轴材料的许用切应力[τ]=60MPa,切变模量G=80GPa。若要求在2m长度的相对扭转角不超过1°,试求该轴的直径。(参考答案:d≥111mm)

978-7-111-43425-2-Chapter03-65.jpg

图3-16 习题3-10图

习题3-14 有一壁厚为25mm、内径为250mm的空心薄壁圆管,其长度为1m,作用在轴两端面内的外力偶矩为180kN·m。试确定管中的最大切应力,并求管内的应变能。已知材料的切变模量G=80GPa。(参考答案:τmax=65.5MPa,Vε=492N·m)

习题3-15 图3-17所示为薄壁杆的两种不同形状的横截面,其壁厚及管壁中线的周长均相同。两杆的长度和材料也相同,当在两端承受相同的一对扭转外力偶矩时,试求:(1)最大切应力之比;(2)相对扭转角之比。(参考答案:(1)978-7-111-43425-2-Chapter03-66.jpg,(2)978-7-111-43425-2-Chapter03-67.jpg

习题3-16 有一外径为100mm、内径为80mm的空心圆轴,与一直径为80mm的实心圆轴用键相联结,如图3-18所示。在A轮处由电动机带动,输入功率P1=150kW,在BC两轮处分别负载P2=75kW,P3=75kW。若已知轴的转速为n=300r/min,许用切应力[τ]=45MPa;键的尺寸为10mm×10mm×30mm,其许用应力[τ]=100MPa和[σbs]=280MPa。(1)作扭矩图;(2)校核空心轴及实心轴的强度(不考虑键槽的影响);(3)求所需键数n。(参考答案:(1)T1=4.78kN·m,T2=2.39kN·m,T3=2.39kN·m;(2)AB段:τmax=41.2MPa,BC段:τmax=23.8MPa,强度满足要求;(3)n=2)

978-7-111-43425-2-Chapter03-68.jpg

图3-17 习题3-15图

978-7-111-43425-2-Chapter03-69.jpg

图3-18 习题3-16图

习题3-17 圆轴受力如图3-19所示,已知:D=30mm,d=15mm,[τ]=50MPa,[φ]=2.5(°)/m,G=80GPa,试对此轴进行强度和刚度校核。(参考答案:BC段:τmax=49.9MPa,DE段:τmax=47.5MPa,强度满足要求;BC段:φmax=2.38(°)/m,DE段:φmax=2.27(°)/m,刚度满足要求)

习题3-18 一矩形截面杆,截面尺寸h×b=90mm×60mm,承受的扭矩为3.5kN·m。试计算杆内的最大切应力。如果改为截面面积相等的圆截面杆,再计算杆内的最大切应力,并比较两者的大小。(参考答案:矩形截面τmax1=46.8MPa,圆形截面τmax2=31.2MPa)

978-7-111-43425-2-Chapter03-70.jpg

图3-19 习题3-17图

习题3-19 一矩形截面等直钢杆,其横截面尺寸h×b=100mm×50mm,长度l=2m,在杆的两端受到一对矩为Me=4kN·m的外力偶的作用。已知钢的许用扭转切应力[τ]=100MPa,切变模量G=80GPa;轴的许用单位长度扭转角[φ′]=1(°)/m。试校核该杆的强度和刚度。(参考答案:τmax=65.0MPa,φ′=1.0(°)/m)

习题3-20 簧杆直径d=18mm的圆柱形密圈螺旋弹簧,受拉力F=0.5kN作用,弹簧的平均直径为D=125mm,材料的切变模量G=80GPa。试求:(1)簧杆内的最大切应力;(2)为使其伸长量等于6mm所需的弹簧有效圈数。(参考答案:(1)τmax=32.8MPa;(2)n=6.4圈)