4.1.5 管理重点
4.1.5.1 盾构穿越保护建(构)筑物
为确保顺利穿越保护建(构)筑物,应对建(构)筑物进行了相应的房屋鉴定,并根据房屋鉴定的结果制定了穿越方案,保护和应急措施,并与相应的管理单位保持密切联系,确保盾构能够安全顺利穿越。
(1)为减小盾构掘进过后土体的后期沉降量,以达到保护上部建(构)筑物的目的。对盾构同步注浆系统进行改制,采用压注大比重单液浆的同步注浆系统,浆液由混凝土搅拌站统一拌制,有效控制土体的后期沉降量。
(2)为增强盾构机本体区域的注浆能力,以应对在盾构机本体上方区域产生的异常沉降现象。在盾构本体腰部和盾尾各增开6个注浆孔,沿圆周均匀分布,用不锈钢球阀密封。在盾构掘进期间,可通过以上注浆孔向外注浆,控制盾构机上方的土体沉降。
(3)增强盾构切削硬质障碍物的能力,在刀盘盘面上增加先行刀和贝壳刀刀具,确保盾构保持良好的工作状态进行穿越段掘进施工(图4-29)。
(4)针对穿越保护建(构)筑物施工,利用盾构掘进姿态实时测量系统,计算盾构机的位置、姿态和趋势信息,并与设计隧道轴线进行比较,以直观的方式图文并茂地给盾构机操控人员实时地提供信息,实时纠偏,减少盾构纠偏带来的土体扰动(图4-30)。
(5)在穿越保护建(构)筑物前,对所有施工人员进行技术交底。使每一个参加施工的工作人员清楚了解盾构与保护建(构)筑物之间的相对位置以及应当采取的不同技术措施。
(6)为了在穿越建(构)筑物时在隧道各不同部位进行针对性的壁后注浆,所以对穿越段管片进行优化,增设注浆孔。注浆孔的位置见图,图4-31中1为原有注浆孔,2为新增设的注浆孔。

图4-29 盾构刀盘改制图

图4-30 空间两点三维坐标及盾构机坡度、滚角计算盾构姿态示意图
(7)为了能在盾构穿越前对保护建(构)筑物有准确的认识和了解,应对保护建(构)筑物进行外观及房屋倾斜率检测,并以此作为房屋损坏评估及后期修复的依据(图4-32)。
(8)应根据前期走访排摸取得的准确数据,制定保护建(构)筑物专项穿越方案,并上报建科委进行专家评审。评审通过后应及时与保护建(构)筑物单位建设单位方取得联系,并办理相关手续,在相关管理单位处进行穿越施工备案。

图4-31 管片优化图

图4-32 建(构)筑物裂缝渗水示意图
(9)针对穿越保护建(构)筑物的重、难点,分穿越前、穿越过程中、穿越后三个阶段,并采取针对性措施对建(构)筑物做到良好的保护。
(10)盾构穿越期间,对保护建(构)筑物进行重点监测保护。监测保护内容包括以下几个内容:
①附近地区地表沉降。
②保护建(构)筑物本体沉降。
③保护建(构)筑物倾斜度测量。
④保护建(构)筑物的裂纹观测。
4.1.5.2 盾构穿越运营轨交线
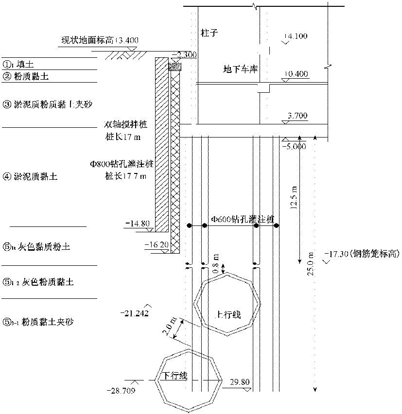
(1)在穿越施工前通过相关部门配合到盾构穿越段的运营地铁线结构内部进行现场踏勘,了解运营隧道的管片结构和隧道现状。应取得该线路运营期间(近期)监测的资料数据,以进一步了解结构的变形情况。从地铁运营公司取得穿越段隧道的准确里程及隧道底标高,进一步对穿越点的平面位置及与盾构的净距进行校核。
(2)为了有效控制盾构穿越前后的地面及运营中地铁线的沉降和位移,在穿越区及前后的管片上适当增加注浆孔数量,根据实际情况进行二次注浆,注浆孔位及注浆量可现场确定。
(3)为减小盾构掘进过后土体的后期沉降量,以达到保护上部建(构)筑物的目的。对盾构同步注浆系统进行改制,采用压注大比重单液浆的同步注浆系统,浆液由混凝土搅拌站统一拌制,有效控制土体的后期沉降量。
(4)盾构掘进线路如处于深覆土区域,且存在小半径平面曲线,可考虑对盾构设备的推进系统进行改制,增加一定数量的千斤顶,以增加盾构总推力以及纠偏的能力(图4-33)。

图4-33 千斤顶改制图
(5)根据盾构穿越地铁线的工况特点,将盾构穿越地铁分为3个阶段,分别为盾构穿越前试推进阶段,盾构穿越阶段和盾构穿越后阶段,并提出相应措施。
①设定一段30环(36m)为推进试验段,将盾构切口到达穿越段前30环作为盾构穿越试推进段。在这段范围内主要收集盾构推进参数,以及不同的施工参数对周围环境的影响大小。
②把盾构切口到达地铁前15环开始设为穿越段开始,直至盾尾脱出地铁15环范围定为穿越段。该控制区段施工时,主要根据穿越试推进段总结的推进参数和施工数据来指导盾构的推进施工。在这个阶段主要任务是控制盾构的施工参数,包括控制推进速度、正面土压力、同步注浆流量、同步注浆压力等主要施工参数。确保穿越过程中运营轨道交通的安全。
③盾构脱出地铁范围至进洞定为盾构穿越后阶段。由于盾构穿越后,地面存在一定程度的后期沉降,会对轨道交通造成影响。必须在穿越区域的隧道内准备充足的补压浆材料以及设备,根据沉降监测情况进行后期补压浆。
(6)与地铁线路营运单位建立联系,取得进入运营中轨道线的权力,便于施工中的监测和突发事件的应急处理。同时,在施工中互通信息,保证盾构施工和地铁的顺利运营。
(7)在盾构穿越施工前,再次复核测量盾构机里程,确认盾构与地铁线路的相对位置,同时明确盾构穿越时各个部位的位置,以便采取相应的技术措施。测量也确保盾构能及时调整,确保以良好的姿态穿越地铁线。
(8)为确保盾构顺利穿越地铁线,在盾构穿越前,对所有施工人员进行技术交底。使每一个参加施工的工作人员清楚了解盾构隧道与地铁线之间的相对位置,以及盾构穿越流程。在盾构机操作室张贴相关技术交底、盾构穿越流程及重点控制措施。此外,使施工人员了解相关的应急预案,及发生突发事件的简单处理方法,便于争取时间。
设备管理上,穿越前,仔细对设备进行一次检查和保养,特别是盾构机,认真检修存在的问题,保证以良好的工况条件下进行穿越施工。同时,仔细检查盾构机的同步注浆设备和管路,并保证二次注浆设备的正常。对行车、电机车、补压浆和拌浆设备等进行彻底检修清理,排除故障隐患,保证穿越期间设备正常运转,避免由于设备上的原因导致施工停顿,影响整个施工质量控制。
(9)盾构穿越运营地铁线期间,监测是极其重要的一项工作。隧道轴线、地面沉降变形和临近构筑物管线的测量工作是必须严密控制的。
(10)盾构穿越运营地铁隧道期间,需要对运营地铁隧道进行稳定性监测。包括:线路沉降监测、线路水平位移监测、收敛监测。施工期间将根据现场情况进行布点监测其相对位移和沉降情况。
监测范围以施工的区间隧道上、下行线与运营地铁线上、下行线相交的两点,沿运营地铁线路纵向向两侧各30m范围内(共120m),由2.4m长电水平尺50支首尾相连构成总长120m监测线(50支×2.4m/支=120m)。利用自动沉降采集系统以及常规光学测量仪器,监测对象为运营地铁隧道线路,线路水平位移、沉降的复核点监测及收敛点监测采用人工测量。
电水平尺24h进行连续跟踪观测,按要求实时报告数据;水平位移、高程复核及收敛点监测在穿越段原则上每天进行一次(按实际施工情况适当加大频率)。三项监测均在施工开始前进场准备、安装,并取得原始读数。
在盾构穿越后,继续进行相关监测,并根据监测情况决定注浆的范围、注浆量和注浆压力等,直至沉降变化量及变化趋势符合相关要求后,停止监测。
(11)穿越期间派专人负责监测信息的即时收集、整理和分析,当实测数据达到(或超过)报警值(变形量为3mm)时,即刻口头报警,以便及时采取相应措施确保安全,并以最快方式提交“日报表”,在日报表上对超限数据会以明显的示警标记提示。总结报告在监测工作全面结束后一个月内提交。
在盾构穿越后持续进行土体变形的观测,便于指导后阶段的跟踪注浆施工(图4-34)。

图4-34 地铁监测控制流程图
4.1.5.3 盾构穿越高架及轻轨
(1)盾构穿越高架及轻轨,应制定专项监测方案,包括桩基测斜、承台沉降监测等。测斜管布置在承台与区间隧道之间,用于观测盾构穿越前后土体的变形情况;在桥墩上设置沉降测点,分别安排在墩柱的四周。以观察墩柱的不均匀沉降,测点为“L”形带圆头的钢制测钉,将其牢固地固定在墩柱下部离地面约20cm处而成;在桥墩上布置倾斜测点,利用经纬仪对墩柱的倾斜情况进行观测。
(2)将穿越前作为试推进段,在盾构穿越高架及轻轨之前的施工过程中,总结出盾构所穿越土层的地质条件,掌握这种地质条件下土压平衡盾构推进施工各施工参数和同步压浆量的设定,以求达到盾构以最合理的施工参数穿越。
(3)盾构推进施工措施:
①严格控制盾构正面平衡压力。盾构在穿越高架及轻轨的过程中必须严格控制切口平衡土压力,平衡压力设定必须根据监测数据综合进行合理调整。在穿越过程中,切口平衡土压的设定既不能导致桩基发生过量侧向变形,也不能导致穿越处发生过量隆起或沉降。同时也必须严格控制与切口平衡压力有关的施工参数,如出土量、推进速度、总推力、实际土压力围绕设定土压力波动的差值等,防止过度超挖、欠挖。
②严格控制盾构的推进速度。盾构穿越高架及轻轨时,推进速度不宜过快,尽量做到均衡施工,减少对周围土体的扰动,同时避免盾构在穿越过程中有较长时间耽搁。一般来讲,正常推进时速度应控制在2cm/min以内。
③严格控制同步注浆量和浆液质量。严格控制同步注浆量和浆液质量,保证盾构推进每一箱土的过程中,浆液均匀合理地压注。每环的压浆量一般为建筑空隙的150%~200%,泵送出口处的压力应控制在0.3MPa左右。
④壁后注浆加固。在先行推进的盾构施工时,当管片脱出盾尾后,及时进行壁后注浆加固,保证后续推进的盾构从侧面顺利穿越,减少由于二次穿越造成土体二次扰动带来的过大沉降。壁后注浆量根据沉降观测结果进行调整。
⑤做好二次补压浆。当盾构穿越过后,必须对高架及轻轨进行持续监测,观察后期沉降情况。根据后期沉降观测结果,及时进行二次补压浆,二次补压浆浆液选用双液浆,以便能有效控制后期沉降,确保施工安全。
(4)在盾构穿越高架及轻轨过程中,宜每6h进行一次沉降监测,并将监测数据迅速地传达给值班人员。穿越过程中根据实际需要可以进行24h不间断地跟踪监测。跟踪监测时,现场监测人员和盾构控制室人员通过内线电话进行及时联系,值班人员对地面监测数据进行综合分析,得出结论及时通过电话传达给盾构工作面,指导盾构施工参数的设定,然后通过变形量的监测进行效果的检验,从而反复循环、验证、完善,保证施工过程中高架及轻轨的安全。
4.1.5.4 盾构穿越河流
在盾构穿越河中段时,可能发生切口冒顶、盾尾漏泥、漏水,对施工构成威胁,因此在该段施工中对可能发生的不利情况要充分估计,采取相应的对策,防止、解决类似情况。
1.防止切口冒顶措施
(1)严格控制出土量,原则上按理论出土量出土,可适当欠挖,保持土体的密实,以免河水渗透入土体并进入盾构。
(2)若出现机械故障或其他原因造成盾构停推,应采取措施防止盾构后退。
(3)每环推进结束后,关闭螺旋机闸门方可进行拼装。
(4)控制壁后注浆的压力,在注浆管路中设置安全阀,以免注浆压力过高而顶破覆土。
2.盾尾发生泄漏现象时的对策
1)防止盾尾漏泥、漏水措施
(1)定期、定量、均匀地压注盾尾油脂。
(2)控制壁后注浆的压力,以免浆液进入盾尾,造成盾尾密封装置被击穿,引起土体中的水跟着漏入隧道,盾尾密封性能降低。
(3)管片尽量居中拼装,以防盾构与管片之间的建筑空隙过分增大,降低盾尾密封效果,引发盾尾漏泥、漏水。
(4)为防止盾尾漏泥、漏水,在江中段推进过程中,将根据情况,在管片拼装时,在盾尾整圈垫放海绵用以止水,封堵管片与盾构间的间隙。
(5)在盾构工作面配置适量的双快水泥、木楔、回丝、海绵等堵漏材料及工具。
(6)在盾构施工至河中段时,聚氨酯的跟踪压注是必不可少的,可根据实际情况,每隔一定的距离压注一圈,作为止水保护圈。
2)盾尾发生泄漏现象时的对策
(1)针对泄漏部分集中压注盾尾油脂。
(2)配制初凝时间较短的双液浆进行二次注浆。
(3)利用堵漏材料进行封堵。
(4)如上述措施效果不理想,可根据实际情况停止推进,在特殊位置进行聚氨酯压注,进行封堵。
3.防止隧道上浮及保持纵向稳定的对策
在河中段,土中的含水量较高,土的渗透系数大,加上潮汐的影响,隧道不可避免地存在上浮的现象,对于隧道的稳定更加不利。为了减少隧道的上浮量,使隧道尽快稳定,采取下列措施:
(1)竖曲线段施工期间严格控制隧道轴线,使盾构尽量沿着设计轴线推进,可控制高程在+20~+30mm内,以减少后期上浮。
(2)每环均匀纠偏,减少对土体的扰动。
(3)加强隧道纵向变形的监测,根据监测的结果进行针对性的注浆纠正。如调整注浆部位及注浆量,配制快凝及提高早期强度的浆液。
综上所述,在施工中强化信息管理,建立完善的信息反馈网络和现场指挥中心,将施工面和监测点的即时情况及时反馈,指导施工。
4.1.5.5 盾构穿越桩基
(1)根据盾构覆土以及连续切削桩基的工况条件,对盾构机设备进行针对性地改制,盾构壳体钢板厚度适当增加,同步注浆管改为内置式,更改刀盘刀具布置,即刀盘开口率加大,增大刀盘驱动能力,并在刀盘上增加贝壳刀,有利于桩基混凝土的破碎和排渣,增强刀盘的切削能力。
(2)为了有效控制盾构穿越前后的桩基后建(构)筑物的沉降和位移,在穿越区及前后一定范围内管片上适当增加注浆孔数量。另外,由于建(构)筑物部分桩基被盾构切断后,仍要承受荷载,断桩的荷载将对隧道结构产生影响。因此在隧道穿越桩群段采用特殊环管片,每环特殊环管片上部3块为钢管片,下部3块为钢筋混凝土管片。区间隧道设置若干环特殊穿越段管片,将有效改善隧道结构的强度和稳定性。
(3)根据盾构穿越建(构)筑物桩群的工况特点,将盾构穿越施工区域划分为三个施工控制阶段,即试验段、穿越段和穿越后控制段。

图4-35 隧道与桩基纵剖面关系示意图
确定盾构刀盘到达切桩范围前2环至盾尾脱出后5环为盾构穿越段施工范围。根据盾构本体的尺寸计算(刀盘提前5环,盾尾滞后2环),穿越段前20环作为试验段,穿越段后20环作为穿越后控制段,理论计算的环号是根据施工图计算得出,施工时在进入试验段和穿越段前进行测量复核,确定穿越区的实际环号并进行相关控制(图4-35)。
根据以往施工经验,在盾构推进过程中,切口到达前地面先有少量隆起,随着盾构穿越开始下沉并在后期沉降变化量较大,即盾构尾部土体后期变形大,此区域为盾构穿越建(构)筑物桩群的重点控制区段。
1.技术准备和设备管理
为确保盾构建(构)筑物桩群,在盾构穿越前,对所有施工人员进行技术交底。使每一个参加施工的工作人员清楚了解盾构隧道与建(构)筑物桩群之间的相对位置以及盾构穿越流程。在盾构机操作室张贴相关技术交底、盾构穿越流程及重点控制措施。
对盾构机、行车、电机车、补压浆和送浆设备等进行彻底检修清理,排除故障隐患,保证穿越期间设备正常运转。
2.现场踏勘及资料收集
在穿越施工前约1个月,通过相关部门配合到建(构)筑物桩群处进行现场踏勘,了解现场的现况条件。施工前与建(构)筑物管理部门以及相关管线单位建立联系,在盾构穿越期间共同做好监护工作。同时,在施工中互通信息,也有利于突发事件的应急处理。
3.注浆加固方法及注浆量
由于盾构推进时同步注浆的浆液在填补建筑空隙时可能会存在一定间隙,且浆液的收缩变形也存在地面沉降的隐患,因此为控制土体后期沉降量,根据监测数据情况,采用在脱出盾尾隧道上方管片补充压注浆液方法,在隧道内对盾构穿越后土体进行加固。注浆加固拟分两步进行:
第一步:隧道管片脱出盾构机后,再对建(构)筑物有影响的施工区段从隧道顶部45°范围内的预留注浆孔,根据监测数据和实际要求,进行跟踪注浆加固,以起到阻止建(构)筑物持续沉降的作用。
第二步:在盾构完全穿过建(构)筑物桩群后,根据后期沉降监测数据对该穿越区域土体进行双液注浆加固。以保持建(构)筑物的长期稳定。
注浆量根据地面监测情况随时调整,从而使地层变形稳定。为保证注浆的有效性,在盾构推进进入试验段内时,先进行模拟穿越及模拟注浆,通过在拼装过程中补压浆和隧道管片新开的注浆孔位,进行补压浆作业,应可以达到控制盾构影响区域内土体沉降的目的。用以掌握控制盾尾后期土体沉降每环所需补充压注浆液总量及压注频率等数据,指导盾构穿越时及后续注浆的施工参数。
当沉降监测数值超过±5mm时,将进行二次注浆作业,二次注浆浆液选定为双液浆,水灰比为1。注浆量和注浆次数根据地面及建(构)筑物沉降监测数据的情况,及时进行调整。
4.盾构姿态控制
盾构在穿越过程中,在确保隧道轴线偏差控制在施工质量要求范围内的条件下,尽量减少盾构纠偏量和纠偏次数。推进时不急纠、不猛纠,多注意观察管片与盾壳的间隙,相对区域油压的变化量随出土箱数和千斤顶行程逐渐变化。采用稳坡法、缓坡法推进,以减少盾构施工对周围土体和桩基的影响。
5.动态信息传递
每一次测量成果都及时汇总给施工技术部门,以便于施工技术人员及时了解施工现状和相应区域管路变形情况,确定新的施工参数和注浆量等信息和指令,并传递给盾构推进面,使推进施工面及时进行相应调整,最后通过监测确定效果,从而反复循环、验证、完善,确保隧道施工质量。
6.施工监测
施工监测对于盾构推进起指导作用,推进控制得一切数据依据都来源于沉降监测,因而监测得范围、布点情况等对于能安全得穿越建(构)筑物起着至关重要的作用。盾构穿越考虑到两次穿越,第一次穿越时,两边穿越的区域同时布点,同时监测沉降,第二次穿越时,以第一次穿越后的沉降数据为基准,进行监测。
监测保护内容包括地表沉降和建(构)筑物本体沉降。
1)盾构穿越前的监测
盾构穿越施工前每天测量2次,对监测数据进行分析,并优化施工参数。
施工前,对各监测项目测取初始值,取至少3次稳定测量值的平均值。
2)盾构穿越时的监测
盾构穿越施工期间,对在影响范围内的监测项目每天测4~5次。
各监测项目的测试及测量频率,应根据实际施工情况,调整各监测点的实际监测项目和监测频率。
如果沉降变化异常时,及时进行加测,必要时进行24h跟踪监测。
3)盾构穿越后的监测
所有监测项目监测周期至沉降变形达到稳定时止。
7.监测警戒值的确定
1)地面沉降报警值
(1)推进时地面单次最大隆起值≤3mm。
(2)推进时地面单次最大沉降值≤3mm。
(3)地表后期最大隆起值≤10mm。
(4)地表后期最大沉降值≤30mm。
2)建(构)筑物沉降警戒值
沉降警戒值为δ/L<0.002(δ为差异沉降值,L为建筑物长度);累计沉降值:10mm,变化速率:2mm/d。
8.监测资料提交
(1)测点布设完成后提交监测点平面布置图。
(2)监测资料每次以报表形式提交,每次报表包括测点本次变化量、累计变化量,施工工况及施工现场地面状况描述。
(3)监测资料提交给现场建设单位、监理工程师。
(4)建(构)筑物监测报表及时寄送建(构)筑物管理单位,出现异常时及时联系。
9.强化施工信息管理
建立完善的信息反馈网络和现场指挥中心,应用“远程监控系统”,将施工面和监测点的即时情况及时反馈到指挥中心,指导施工。
4.1.5.6 盾构穿越复杂土层
1.施工优化
(1)盾构平衡压力的控制。由于涉及土层多且土体较不稳定,盾构推进的后期地面沉降会相对较大。因此在推进时,可在地面隆起允许的情况下,适当提高盾构机的正面平衡压力,以减少后期的沉降量。
(2)推进速度。在复杂土层中推进时,大刀盘所受扭矩及推力将大大增加,所以盾构推进速度控制在30~40mm/min。通过减缓推进速度,达到降低刀盘扭矩和盾构推力的效果,同时也减少对周边土体的扰动。在控制推进速度的情况下,也要保证连续均衡施工,避免较长时间的搁置。
(3)控制盾构纠偏量。盾构姿态变化不可过大、过频,每次纵坡变化小于0.2%,同时应连续施工。
(4)同步注浆量的控制。通过注浆加强土体及其周边的稳定性。同时,再根据监测数据的反馈来加以适当的调节。
2.特殊措施
(1)土体改良。由于土层复杂,给螺旋机排渣带来一定的困难,可考虑加入水或膨润土来改良土体,并应避免长时间停顿。压注膨润土浆液时,应观察螺旋机的排土状态及正面土体的沉降状况,确保正面土体稳定。千斤顶速度应与之相配合,从而使盾构推进速度达到较好的状态。实际推进时,通过压注量的调整,了解正面的土体状况并反馈指导膨润土浆液的具体压注方量。
(2)盾尾油脂的压注。施工时,由专人负责盾尾油脂的压注工作,确保每环的盾构油脂压注量。同时,根据盾构盾尾油脂的压力表反馈信息,始终使盾尾油脂压力处在高于外部压力的情况下。
(3)二次注浆。穿越复杂土层时,采取二次注浆,有效地弥补因同步浆液收缩变形而引起的地面变形隐患,同时提高土体的强度,防止土体液化。在必要时,二次注浆可与盾构推进施工同时进行,实现跟踪注浆的效果。