12.4.13 接触网与风水电

12.4.13 接触网与风水电

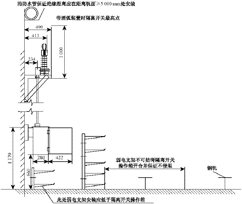
(1)如果有消防水管经过接触网隔离开关处时,应满足不妨碍隔离开关操作箱的操作,也要满足从上方经过时保证与隔离开关带电部分的绝缘距离500mm,如图12-9所示。

图12-9 接触网隔离开关与消防水管相对位置示意图

(2)接触网专业在进行隧道冲洗前,风水电专业应保证区间消防水管能够及时供水及排水与图12-8有关,并确保水压能够满足隧道冲洗的要求。