19.4.2 施工接口管理

19.4.2 施工接口管理

1.数控不落轮镟床

1)管理接口

(1)工艺设备专业与土建单位的接口管理:

①土建单位建造不落轮璇床库房,同时浇筑库房内侧起重机用钢筋混凝土牛腿。设备安装要求不落轮镟库房内净高7.2m以上,并尽可能高,室内地坪能承重50t汽车吊作业

②土建单位按照设计图纸架设承轨梁。土建单位要注意:在采购承轨梁时,承轨梁上众多的安装孔应在承轨梁制作厂内按设计要求预制好,尽量避免在施工现场打孔作业,钢制承轨梁如图19-2所示。施工完工后向工艺设备专业办理交接手续,移交承轨梁施工作业面。

图19-2 钢制承轨梁示例图

③ 土建单位严格按设计施工图建造机坐标(注意轴线与设计轨道中心线的重合性)、基础上预留孔的位置、大小和深度。清理机坑内、基础预留孔内的建筑垃圾和积水等。施工结束后向工艺设备专业办理交接手续,如图19-3所示。坑,浇筑设备基础。特别要注意基础的标高、

④ 土建单位向工艺设备专业提交经监理验证的基准点、基准线和水准点,由工艺设备专业测设安装施工控制点,以满足在安装施工过程中所要进行的平面和高程控制测量、安装测量等(图19-4)。

⑤土建单位提供:

图19-3 不落轮镟机坑、基础示例图

图19-4 基准点示意图

(a)不落轮镟库房内电源柜(含总电源电缆及预埋管的提供和敷设;电气分界面按设计施工图标注,一般为“电源柜(箱)的出线桩头”,出线由设备安装施工专业负责)。

(b)库房照明、机坑内照明和电源插座(220VAC)。

(c)机坑内接地装置(接地端子箱)。

(d)机坑内空调(含相应管路、电气连接等全套)。

(e)集水坑及预埋排水管。

(f)坑盖板、栏杆等。

(g)压缩空气预埋管路等。

(2)工艺设备专业与轨道专业的接口管理

①进、出不落轮镟床的两侧钢轨在离机坑边各1m处设钢轨绝缘,列车进入一侧的钢轨在“1m钢轨绝缘处”以外留有足够1列车长度的位置设钢轨绝缘,如图19-5所示;钢轨绝缘处槽切割由轨道施工专业负责,绝缘件设置由信号施工专业负责。

②钢轨由轨道施工专业提供和整条铺设穿越不落轮镟车床的机坑,并调整好轨平面标高(设备安装将以轨平面为基准);机坑内部分钢轨的分割由工艺设备专业负责。

图19-5 安装示例图

(3)工艺设备专业与信号专业的接口管理:信号施工专业提供一门能上网的电话。钢轨绝缘处绝缘件设置由信号施工专业负责。

(4)工艺设备专业与触网专业列车进库由不落轮镟床系统配置的牵引车牵引。的接口管理:触网电化至库前10m,

2)工艺设备专业与车辆供货商的技术接口管理

(1)车辆供货商提供相关车辆参数:轴重、车辆外形尺寸、车底设备布置图、转向架装配图、轴箱外形尺寸及强度。

(2)车辆供货商提供轮对技术参数及加工精度要求,轮对材质及热处理条件等。

(3)车辆供应商提供车辆车钩参数。

2.地坑式固定架车机

1)管理接口

(1)工艺设备专业与土建单位的接口管理:

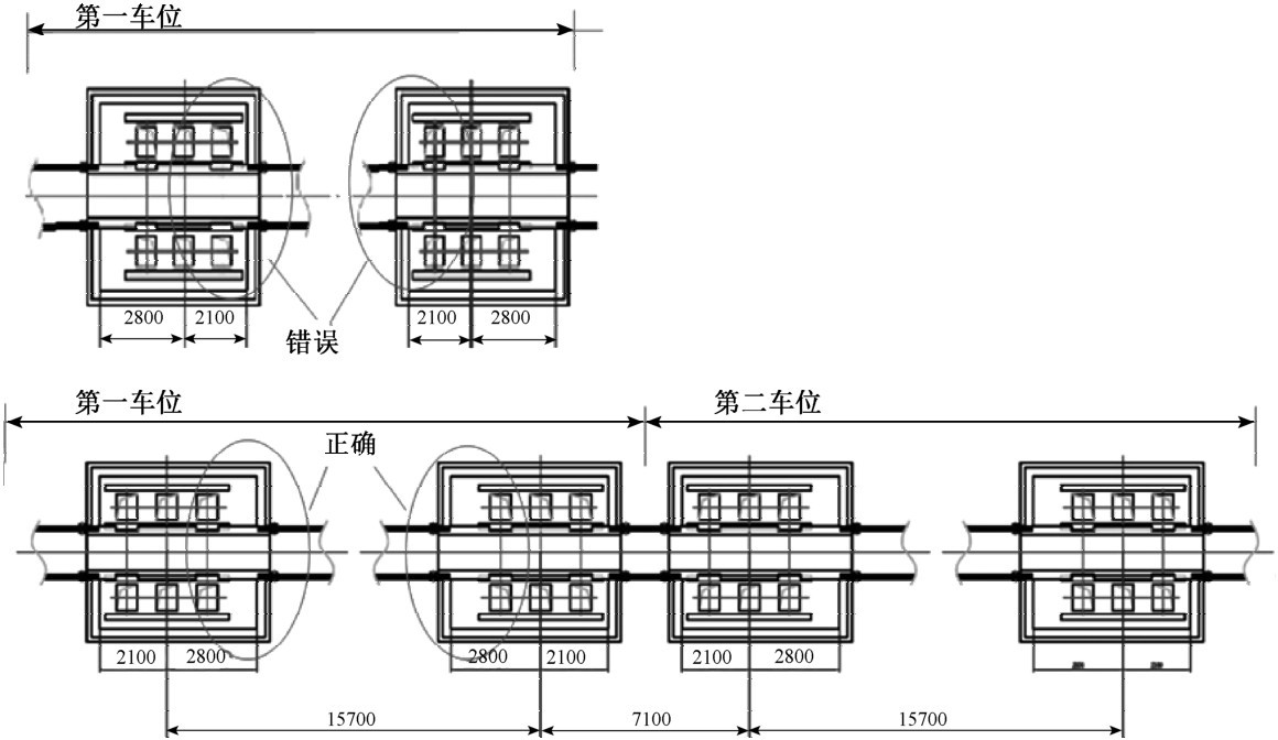
①为满足整列编组中各相邻两节车体具体尺寸(15700mm,7100mm)的架车要求,土建单位须按设计施工图要求严格控制相邻两个地坑之间的中心距的测量放线工作。

②为满足整列编组的架车需要,土建单位须按设计施工图要求严格控制整列编组全长方向上各地坑的建筑基准轴线的测量放线工作,保证全长方向上各地坑的建筑基准轴线在同一直线上(偏差应符合设计要求),并注意配合轨道施工专业认真复核轨道基准轴线是否与建筑基准轴线一致,如图19-6所示。

图19-6 车体尺寸示意图

③土建单位按设计施工图建筑所有地坑、地面预留孔(电气柜用)以及提供和敷设所有电气预埋管线和各种埋铁。注意:

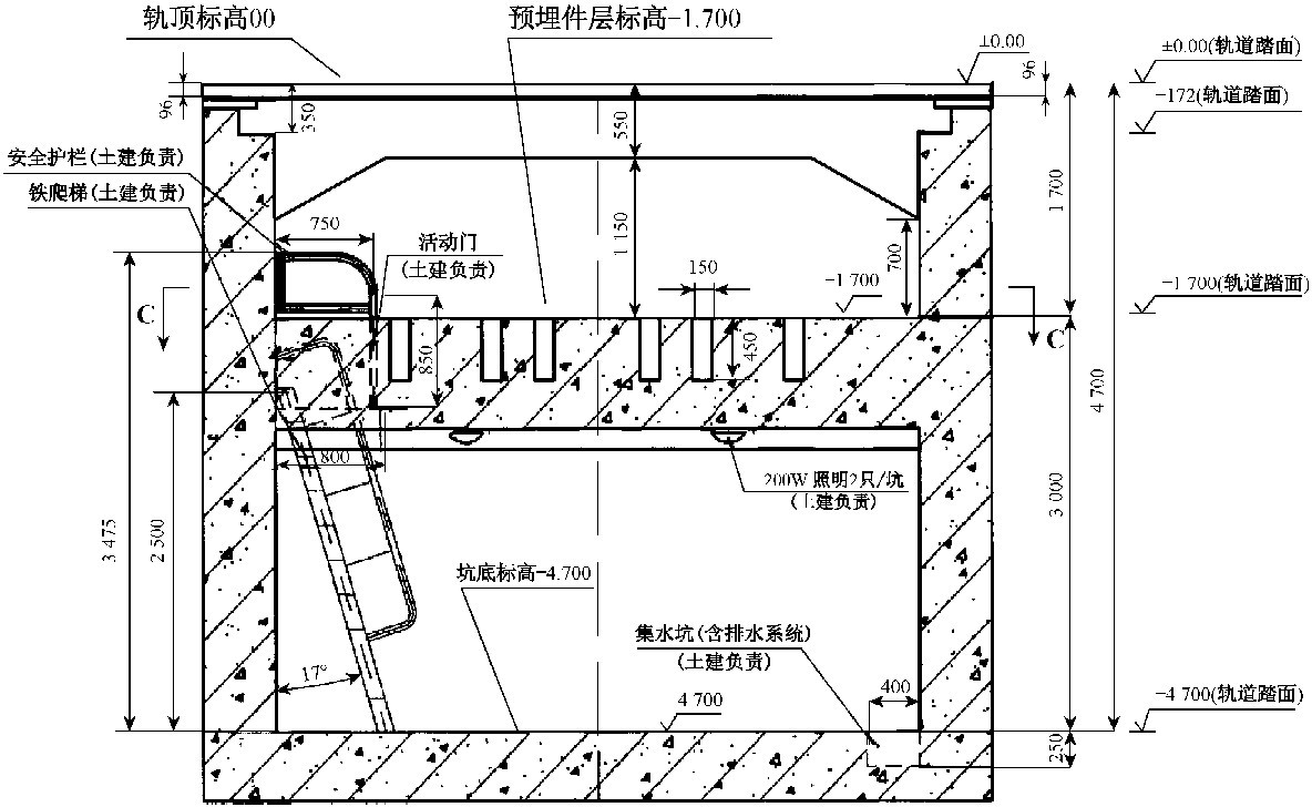
(a)地坑内坑底标高和预埋件层的标高控制,应满足设计施工图要求,否则会影响架车机的正确安装,如图19-7所示。

图19-7 坑底(预埋层)标高示意图

(b)地坑内一些预留槽的位置、方向不要弄错,应按设计施工图要求施工,如图19-8所示。

图19-8 预留槽示意图

④土建单位提供:

(a)总电源柜(含总电源电缆及预埋管的提供和敷设;电气分界面按设计施工图标注,一般为“电源柜(箱)的出线桩头”,出线由设备安装施工专业负责)。

(b)地坑内照明和电源插座(220VAC)。

(c)地坑内接地装置(接地端子箱)。

(d)集水坑及预埋排水管等。

(2)工艺设备专业与轨道专业的接口管理:

①轨道施工专业按设计施工图要求控制轨道基准轴线的测量放线,保证轨道基准轴线与各地坑建筑基准轴线一致(偏差符合要求),如图19-9所示。

图19-9 基准轴线示例图

②轨道按施工图示由轨道专业施工并按地坑分布分段铺设,在各地坑处轨道端头伸入地坑并露头出坑沿100mm,并调整好轨平面标高(设备安装将以轨平面为基准),注意以下要求,如图19-10所示。

图19-10 轨道施工示意图

(a)伸入地坑的轨道的四个端点的相对水平误差≤1mm;

(b)同一车位的伸入地坑轨道端点的相对水平误差≤2mm;

(c)8个车位的伸入地坑轨道端点的相对水平误差≤10mm;

(d)端点与压板的距离A≤500mm。

2)技术接口

工艺设备专业与车辆供货商的接口,车辆供货商提供相关车辆参数:轴重、轨距、车辆外型尺寸、车底设备布置图、转向架装配图等。

3.洗车机

1)管理接口

(1)工艺设备专业与土建单位的接口管理:

①土建单位按设计施工图提供整体道床、设备基础(含预留孔洞)、排水沟(含盖板)、电缆沟(含盖板不含电缆支架)、集水沟(含盖板)、回收水池(含盖板、爬梯)、预埋件、预埋电缆管(槽)等。其中要注意控制排水沟和集水沟的沟底标高,控制水源的进水接口规格位置,控制洗车机信号、水、电、气、视频、网络以及电话等所需的预埋管,水沟和水池内壁均必须做防渗漏处理并且要进行渗漏检查,如图19-11所示。

②对于端洗部分的上部辅轨,由土建单位在房顶钢筋混凝土梁上及墙上按设计施工图要求留好预埋件和预留孔,辅轨由工艺设备专业提供和安装,如图19-12所示。

图19-11 洗车库示例图

图19-12 洗车库示例图

③土建单位提供:

(a)洗车机总电源供电箱(柜)(含总电源电缆及预埋管的提供和敷设;电气分界面一般为“电源柜(箱)的出线桩头”,出线由工艺设备专业负责)。

(b)至少四处接地桩头(接地端子箱),供设备接地与建筑接地相连。各点接地电阻小于4Ω。设备接地环网由工艺设备专业负责。

(c)给水管、排水管分别接到规定的位置,从所接位置到列车清洗机内部所有的给排水管由工艺设备专业负责。

(d)所有室内照明和墙上电源插座。

(e)控制室内铺设防静电地板。

(2)工艺设备专业与轨道专业的接口:

①端洗部分的地面铺轨由轨道专业提供和铺设,且该铺轨的规格型号与轨道专业列车路轨相同。

② 端洗部分地面铺轨的接地由轨道专业负责,如图19-13所示。

图19-13 洗车库铺轨示例图

(3)工艺设备专业与触网专业的接口:

①触网专业在洗车库两端设隔离开关,在进行设备检修时确保洗车库内接触网无电;根据设计要求在库内设置分段绝缘器。

②接触网及其承力索在端洗区无电,即设无电区。

③接触网在洗车库内挂接点可在洗车库上横梁上,但不能设置在端洗区上方。

④接触网在端洗区与轨道中心线同一垂面内,如图19-14所示。

图19-14 洗车库接触网示例图

2)技术接口

(1)工艺设备专业与车辆承包商的接口管理

①车辆承包商提供列车的相关技术参数:列车编组;受电弓间距;车辆外形尺寸;限界;车头尺寸;车门形式;雨刮器位置;车辆外表面油漆对洗涤剂的要求。

②车辆承包商提供车辆构造断面尺寸坐标图;车辆端部形状尺寸坐标图。

端刷洗工作原理:采用带有通信功能(PROFIBUS网络)的传感器检测端刷旋转电机的负载工作电流,负载工作电流直接反应了刷毛与车体间的接触深度(吃毛量)即刷毛与车头的接触压力,也就是说负载工作电流的数值直接反应了端刷的刷洗效果。为保证刷洗均匀,控制系统软件根据车头的轮廓曲线计算出每一点的参考速度,同时根据端刷旋转电机负载工作电流和端刷吃毛量的关系曲线预设参数(即对应刷毛与车体间的压力),与通过PROFIBUS网络远程实时传输过来的电流值进行比较、计算,控制、调整端刷与车头端面的相对速度,完成仿形清洗的控制如图19-15所示。

图19-15 洗刷原理示意图

4.起重机

1)管理接口

(1)起重机设备与土建单位的接口管理

①单梁或双梁桥式起重机:

(a)起重机走行轨与结构承轨梁连接按国标图集。起重机的走行轨由设备专业提供和安装,承轨梁由土建单位提供和吊装、架设施工。

(b)土建单位在吊装、架设承轨梁时需要保证起重机的跨度。根据GB/T10183—2005桥式和门式起重机制造及轨道安装公差标准4.6.4公式判断,当跨度≤10m时,为±2mm;当跨度>10m时,为±[2+0.1×(S-10)]mm。但最大不得超过±10mm(图19-16)。

图19-16 走行轨与结构承轨梁连接示意图

(c)土建单位吊装、架设结构承轨梁后需保证其平整度每百米不超过20mm。

(d)承轨梁可分为钢筋混凝土制和钢制两种形式。混凝土制承轨梁上在预制厂内一般已预制有压板螺栓孔。如果结构承轨梁为钢结构,钢结构厂家需在承轨梁产品出厂前在梁上相应位置钻好压板螺栓孔,避免在现场吊装后打孔,否则,施工难度大大增加并影响进度(图19-17、图19-18)。

图19-17 钢筋混凝土承轨梁示例图

图19-18 钢制承轨梁示例图

(e)土建单位提供驾驶室(如有)停放位置、司机室钢梯和平台等。钢梯和登机平台开门方向按设计要求设置。司机室钢梯应与滑触线分别设在起重机的两对侧(图19-19)。

图19-19 起重系统示意图

(f)起重机和钢结构之间的安全距离按国家标准执行。

②单梁悬挂起重机:土建单位按照国标图集要求,在混凝土梁上相应位置预留对穿螺栓孔供安装起重机走行轨用。孔的直径和要求按国家标准G359—1—4,DGL—6—9轨道联接平面图、立体图执行(图19-20)。

图19-20 起重机走行轨安装示意图

③悬挂伸缩臂起重机:

(a)伸缩臂悬挂起重机的走行轨安装基本分为两种情况,即在混凝土梁上安装和在钢结构屋架上安装(图19-21)。

图19-21 伸缩臂悬挂起重机走行轨安装示例图

(b)土建单位施工的上平台宽度3200 mm,高度3.6m,上平台纵向边沿应与路轨平行(修整后),可满足列车车辆限界要求,并满足能将列车空调吊运至上平台栏杆内,并沿上平台纵向安全移动的要求(图19-22)。

图19-22 上平台示例图

(c)设备专业与土建专业的分工界面以6.54m标高划分,以上由土建专业负责,以下由设备专业负责(图19-23)。

(d)起重机走行轨两端应入墙或在墙上固定;墙上由土建专业预留孔或预埋钢板。

图19-23 设备专业与土建专业分工界面示意图

④起重机电气接口:

(a)土建专业提供电源箱(含电源电缆及预埋管的提供和敷设;电气分界面按设计施工图标注,一般为“电源箱的出线桩头”,出线由工艺设备专业负责)。

(b)土建专业负责实施并预留若干数量和设计规定形式的接地连接点,起重机走行轨接地由工艺设备专业负责接入。

(c)土建单位提供悬挂伸缩臂起重机的电源箱与触网供电以及上平台入口门电磁锁间的电气联锁设置控制箱1个,或提供该电源箱并具备与触网供电以及上平台入口门电磁锁间的电气联锁功能。

(2)悬挂伸缩臂起重机与轨道专业的接口管理:

①伸缩臂起重机的安装以轨顶平面为标高0.000基准。

②伸缩臂起重机两条走行轨应与轨道中心线平行。轨道的铺设由轨道专业实施,纵向全长方向上中心线偏差应符合要求(图19-24)。

图19-24 伸缩臂起重机走行轨与车辆轨道示例图

(3)悬挂伸缩臂起重机与触网专业的接口管理:触网专业按设计施工图和有关标准进行触网安装施工,标高满足要求。触网专业实施的触网供电应满足与起重机电源箱以及上平台入口门电磁锁间的电气联锁功能要求。在触网隔离开关操作手柄ON时,起重机电源无法接通,电源箱红灯警示;在触网隔离开关操作手柄OFF时,电源箱红灯变为绿灯,电源箱可以接通电源,一旦起重机电源接通,同步锁定接触网隔离开关操作手柄OFF位,一旦起重机电源关闭,同步解锁接触网隔离开关操作手柄ON位。

2)技术接口

悬挂伸缩臂起重机与车辆供货商的接口管理:车辆供货商提供列车车顶空调机的外形尺寸、重量、吊耳位置等参数和相关图纸。

5.平轮探测系统

1)管理接口

(1)工艺设备专业与土建单位的接口管理。土建单位提供平轮探测系统主机房、复示站。平轮探测系统主机房和探测传感器设在车站内;复示站设在车辆段。土建单位提供主机房、复示站220V电源。

(2)工艺设备专业与轨道专业的接口管理。轨道专业确保平轮探测系统安装空间。

(3)工艺设备专业与信号专业的接口管理。信号(通讯)专业提供电话线接口、光纤网络接口。

2)技术接口

①工艺设备专业与设计的技术接口管理。设计应将平轮探测系统主机房和探测传感器设在车站内;复示站设在车辆段。

传感器的设置区域要满足如下条件:

①位于列车出站线上,要有80m及以上的直线轨道区段。

②上述直线轨道区段内无道岔。

③上述直线轨道区段的坡度≤2‰。

(2)工艺设备专业与车辆供货商的接口。车辆供货商提供相关车辆车号(电子标签)。