17.4 接口管理

17.4 接口管理

(1)土建接口管理。电梯与土建井道结构的接口(图17-2)。

(2)装饰接口管理。垂直电梯与墙面装饰接口、垂直电梯与地面装饰接口。

(3)安装接口管理。垂直电梯与FAS接口、垂直电梯与BAS接口、垂直电梯与通信接口、垂直电梯与动力电源接口。

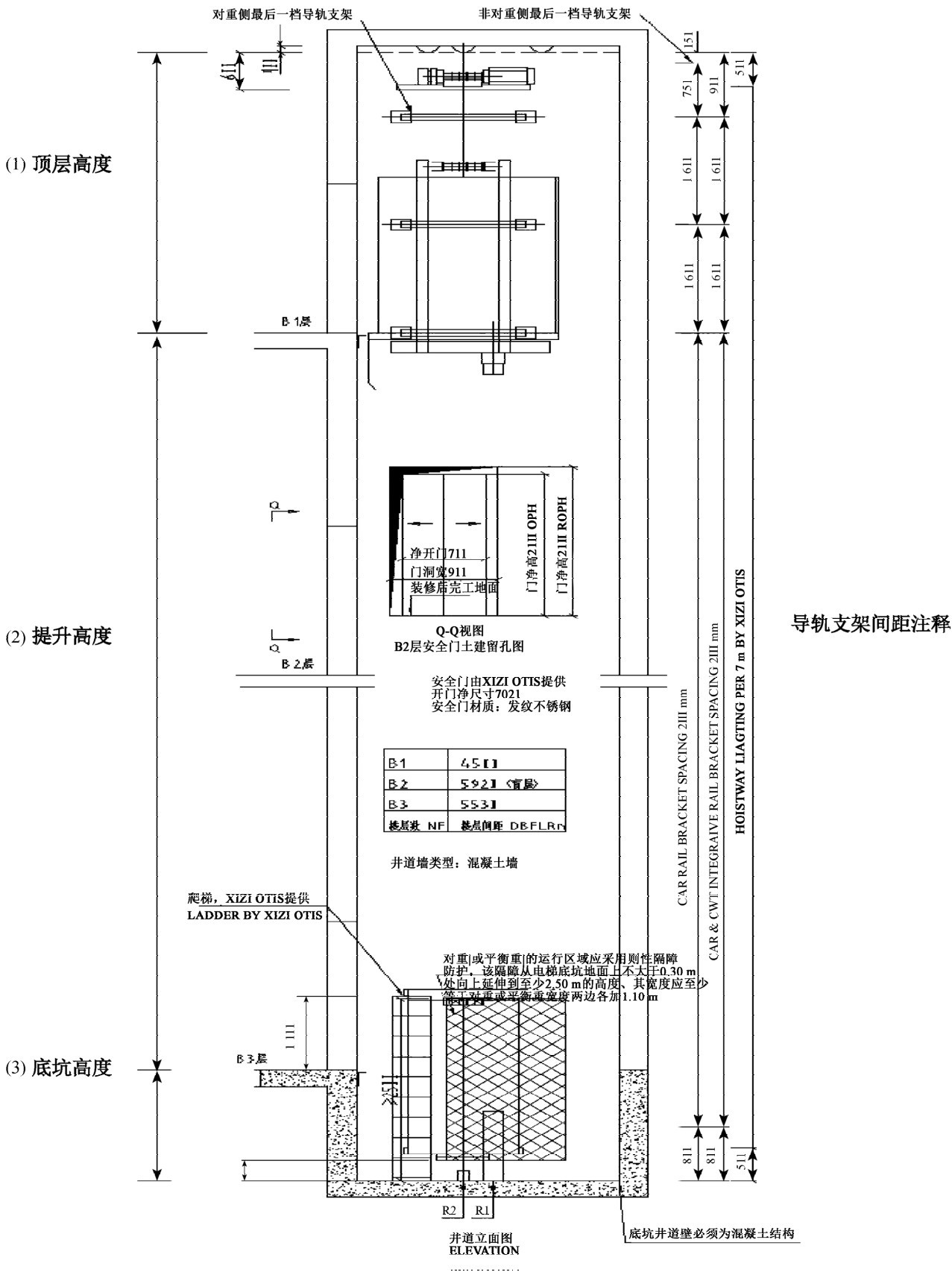
1.土建结构接口

(1)井道尺寸如图17-3所示。

图17-2 垂直电梯井道结构示例图

(2)顶层高度如图17-4所示。

图17-3 电梯井道截面尺寸示例图

图17-4 顶层结构示例图

(3)地坑深度如图17-5所示。

(4)门洞尺寸如图17-6所示。

(5)厅门上坎尺寸如图17-7所示。

图17-5 地坑结构示例图

图17-6 门洞结构示例图

图17-7 厅门上坎示例图

(6)厅门垂直度偏差如图17-8所示。

(7)井道吊钩如图17-9所示。

图17-8 厅门示例图

图17-9 井道吊钩示例图

(8)厅门侧井道壁如图17-10所示。

图17-10 厅门井道壁示例图

2.装饰界面接口

(1)墙面装饰如图17-11所示。

图17-11 墙面装饰示例图

(2)地面装饰如图17-12所示。

图17-12 地面装饰示例图

3.FAS和BAS面接口

(1)FAS系统的接口:FAS系统买方的车站设备控制系统,垂直电梯专业向FAS系统提供电梯消防反馈信号,接口通信协议按设计联络确定,接口分界点在电梯井道内控制柜接线端子排上,如图17-13所示,接口电缆由FAS系统负责设计。

图17-13 FAS系统接口示例图

(2)环境与设备监控系统(BAS)的接口;BAS系统是买方的车站设备监控系统,垂直电梯专业向BAS系统提供电梯监视信号。接口通信协议按设计联络确定,接口分界点在电梯井道内控制柜接线端子排上,电梯提供通信接口,如图17-14所示,接口电缆由BAS系统负责设计。

4.通信和动力电源界面接口

配电系统的接口;配电系统给每台电梯设有独立回路,由配电专业将供电电缆拉至电梯顶层厅门边控制柜边并预留一定长度,如图17-15所示。具体配电容量等参数请按供电设计要求。

图17-14 BAS系统接口示例图

图17-15 配电系统接口示例图